как сделать проект дома самому
Для многих людей загородный дом является чем-то наподобие заветной мечты – перспектива отдохнуть от городской суеты в уютном уголке кажется достаточно радужной. Более того, хочется не просто приобрести уже готовое строение с обустроенным приусадебным участком, а создать усадьбу своей мечты, в которой будут правильно воплощены все пожелания относительно дизайна и планировки. Остается только одно – перенести свои задумки на бумагу, а уже затем, составив проект дома и определив его месторасположение на участке, воплощать в жизнь (заниматься непосредственно строительством дома). Если в отношении второго момента, по определению, не может быть никаких сомнений относительно необходимости сторонней помощи – даже в том случае, если вы будете профессиональным строителем, самостоятельно возвести правильный особняк вы не сможете, а вот затраты на составление архитектора можно исключить. Каким образом проектирование и строительство можно удешевить? Да очень просто – выполнить самому его работу вполне возможно, даже не имея каких-либо специальных навыков создания проекта частного дома.
Осуществить проектирование дома (нарисовать его на бумаге схематически), на самом деле, не так уж и сложно!
Что нужно учитывать при самостоятельном составлении проекта собственного дома?
Самое главное заключается в том, чтобы разработанный вами проект строительства дома создавался опираясь на следующие принципы:
- Множественная функциональность – то есть, возведенный дом по этому проекту будет удобен и практичен во всех отношениях. Проект дома своими руками должен быть не хуже архитекторского;
- Простота конструкции – сделать проект дома несложно будет только в том случае, если он не будет предполагать каких-либо изысков. Создание какого-то особо сложного проекта, реализация которого потребует огромного количества творческих изысков, человеку, не имеющему специального образования, крайне не рекомендуется, ибо можно не учесть некоторые принципиально важные вещи;
- Эстетичность – конечно же, загородный дом должен выглядеть красиво и радовать взор своих хозяев.
Проект надежного дома должен быть еще и эффектным!
Запомните – в том случае, если проект будет создан с учетом этих принципов, то он и в жизни будет очень неплох. Опять –таки, речь идет о достаточно примитивном самостоятельном строении – коттедж премиум-класса любитель не спроектирует. Проектированием домов такого уровня заниматься должен только архитектор – новички здесь очень часто делают ошибки.
Содержание
- Предварительный этап — разведка
- Начало проектирования дома
- Подвальное помещение / фундамент
- Проект первого этажа
- Второй этаж
- Мансарда / крыша
- Утверждение проекта для начала строительства
Геологическая разведка участка дома
С чего начинается «работа над проектом дома своими руками»? В первую очередь, при работе над проектом дома самостоятельно, необходимо провести геологическую разведку участка – оценить характер местности, почвы и узнать уровень стояния грунтовых вод.
Лучшее время года для этого – весна, тогда их уровень находится максимально высоко и есть возможность с максимальной достоверностью определить этот показатель. Сделать это очень важно исходя из того, что именно данный показатель имеет наибольшее значение при закладке фундамента частного дома.
Для определения глубины залегания грунтовых вод рекомендуем обратиться к специалисту
Начало проектирования дома
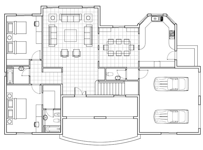
Для наглядного примера наша редакция использовала программу бесплатную демо-версию программы «Визикон». Но все действия вполне можно выполнить и на обычном листе бумаги. Для примера был выбран простой проект двухэтажного дома 10 м х 10 м
Для проектирования домов необходимо будет «вооружиться» обычным тетрадным листом в клеточку и карандашом, задав при этом соответствующий масштаб. Рациональнее всего в данной ситуации будет поступить следующим образом – десять метров участка условно обозначить двумя клеточками. Таким образом, один сантиметр на линейке будет равняться 1 метру в реальной жизни – соотношение один к ста.
Шаг 1: наносим контур дома на тетрадный лист с помощью линейки и карандаша в масштабе 1:100, т.е. 1 см на бумаге будет равен 1 метру
Нанесение на бумагу контура самого участка, а также будущих строений. В данном случае все работы необходимо осуществлять в строгом соответствии с правильным масштабом – старательно перемеряя каждый метр на земле и нанося его на бумагу в соответствии размеров один к тысяче, вы обеспечиваете надежность и эстетичность возводимого здания. Нарисовать проект таким способом можно очень быстро. Обязательно надо учитывать не только контуры участка, отданного под проектирование и строительство, но и все расположенные объекты на участке, которые находились там еще до его планируемого возведения, и при этом их перенести не представляется никакой возможности. После этого можно будет приступить к проектированию самого здания – для упрощения задания, предположим, что проектируемый дом будет состоять из четырех комнат, кухни и двух санузлов (стандартное жилье для семьи из нескольких человек).
Подвальное помещение / фундамент
Несколько слов относительно проектирования подвального помещения. Необходимо отметить, что далеко не всегда в нем есть необходимость. Например, в том случае, если грунтовые воды стоят высоко, то это будет очень дорогим удовольствием – намного проще будет в проект включить еще одну комнату — как дополнительное помещение.
Проект первого этажа
Наносим на эскиз тамбур и прихожую – а уже из нее будут переходы в кухню и другие комнаты. Располагать помещения необходимо с учетом следующих моментов:
- Санузел и кухню следует размещать в непосредственной близости друг к другу – благодаря этому расположению намного проще будет проводить коммуникации;
- Очень неплохо, если составленный проект подразумевает отсутствие проходных комнат – это неотъемлемый элемент комфорта;
- На первом этаже надо учитывать наличие всех вспомогательных конструкций и помещений – их расположение будет очень важно не только для обеспечения функциональной пригодности дома, но и для комфортного перемещения жильцов.

Шаг 2: чертим все комнаты и помещения первого этажа с необходимым размером
После этого располагаем и планируем все двери нашего дома
Шаг 3: проектируем двери на первом этаже
Затем окна с учетом желаемой освещенности комнат и вашего бюджета
Шаг 4: проектируем окна на первом этаже
В итоге получаем такой первый этаж:
Вот такая получилась 3D модель первого этажа
Прорисовываем второй этаж
Здесь уже все будет намного легче – ведь помещения в доме могут располагаться идентично (самое главное, не менять взаимное расположение санузлов — для того чтобы не усложнять проведение коммуникаций). Вполне достаточно будет спроектировать место расположения входной двери (многие архитекторы рекомендуют делать два входа на второй этаж — дома и с улицы) и окон.
Шаг 5: Аналогично планируем помещения второго этажа. Не забываем про коммуникации — располагаем санузлы и ванную друг под другом
Шаг 6: располагаем двери
Шаг 7: чертим окна второго этажа
Получили вот такую 3D модель второго этажа
Проектирование мансарды и крыши
Решили создать проект дома сами – не нужно будет пытаться нарисовать какую-то слишком «заумную» крышу с большим количеством изгибов.
Запомните – крыша является одним из самых важных структурных компонентов в доме, и пытаться создавать дополнительную эстетичность, поставив под вопрос надежность, уж точно не стоит. Это все приведет к тому, что местах изгибов возникнут течи. Рисуете проект – будьте добры, исповедуйте принципы минимализма в архитектуре.
Для проектирования подобной крыши без архитектора не обойтись
Зависимость проектировки дома с изоляцией
Есть одно очень важное правило – все вспомогательные помещения необходимо строить с северной стороны. Несмотря на то, что теплоизоляция, выполняемая при помощи строительных материалов, имеет первостепенное значение, взаимное расположение комнат также нельзя выпускать из виду – хотя бы из-за экономии расхода энергии на обогрев дома.
Утверждение проекта для начала строительства
Необходимость корректировки проекта. Даже в том случае, если вы сами смогли изобразить на бумаге дом своей мечты, необходимо будет перед началом строительства дома все-таки проконсультироваться со специалистами – мнение грамотного прораба или же архитектора лишним не будет.
Как минимум, необходимо будет согласовать следующие моменты:
- Проведение электрики;
- Проведение собственной канализации;
- Проведение водоснабжения;
Необходимо понимать, что все указанные выше вопросы не являются художественной или архитектурной частью проекта. Это все — самые рутинные вопросы, грамотный подход к решению которых обеспечивается только профессионалами своего дела. В крайнем случае, любой недосмотр при самостоятельном составлении проекта дома, который допустил человек, не имеющий профильного образования, может быть подкорректирован грамотным прорабом, который практическую сторону любой идеи понимает намного лучше. Хотя даже в том случае, если проект составляется профессиональными архитекторами, то также не исключаются чисто практические недочеты.
Самостоятельная работа над проектом дома и ее преимущества
Проект своего дома вы можете создавать сами – для того, чтобы разработать чертежи взаимного расположения тех или иных помещений, а также определиться с местом дома на участке, не потребуется специальных знаний.
Грамотный и ответственный подход к делу обеспечит вам успех мероприятия. Однако в плане проведения коммуникаций надо будет обязательно проконсультироваться с профессионалами. Таким образом можно будет правильно спланировать дом, который прослужит вам верой и правдой.
Читайте про следующие этапы строительства:
Смотрите также видео о том, как сделать проект дома самостоятельно
Читайте про предыдущие этапы строительства:
Как сделать дизайн-проект ремонта самому
Два года назад мы с мужем купили квартиру площадью 56 м² в новостройке.
Ольга Быстрова
сделала дизайн-проект
Профиль автора
Никакого опыта ремонта у нас не было, а словосочетание «эпоксидная затирка» вызывало ужас и трепет. Дизайн-проект квартиры у профессионалов стоил 3000 Р за квадратный метр, а ждать его надо было три месяца, продолжая все это время платить за съемную квартиру.
Вооружившись Гуглом, экселем и собственной головой, мы сделали дизайн-проект самостоятельно. Поделюсь опытом.
Как сделать дизайн-проект квартиры самостоятельно
- Провести замеры
- Понять, что точно должно быть в квартире
- Определиться со стилем ремонта
- Сделать чертежи
- Сделать смету
Эта статья про наш опыт. У вас все может быть по-другому
Да, мы сделали дизайн-проект самостоятельно, но это не значит, что мы сделали его лучше, чем сделал бы дизайнер. После этого мы не стали дизайнерами помещений. Мы не рекомендуем всем срочно повторять наш опыт, а просто рассказываем о нем.
Наша квартира до ремонта И послеЗачем нужен дизайн-проект
Дизайн-проект — это набор чертежей, коллажей и визуализаций, который дизайнер готовит для конкретной квартиры.
Обычно проект выдают заказчику в виде альбома. Там не только нарисовано, как будет выглядеть помещение после ремонта, но и приведены технические расчеты. Например, сколько потребуется плитки для ванной, краски или обоев для стен, где будет проложена электропроводка, где выведены розетки и так далее.
Владелец квартиры видит будущий результат, а строители понимают, что им делать.
Профессиональный дизайнер создает чертежи в специальных программах на компьютере. Мы же рисовали всё от руки — потребовались линейка, миллиметровая бумага, цветные карандаши, гелевая ручка и рулетка. Для заметок и расчетов завели отдельный документ в «Гугл-таблицах». В него вносили вообще всю информацию, касающуюся ремонта, включая чертежи и картинки из интернета с интерьерами, которые нам понравились. Еще я советую все чертежи загрузить в телефон, чтобы они всегда были под рукой.
Наша таблица с заметками и расчетами
Кроме того, мы с мужем создали отдельный чат в Вотсапе. Так не приходилось постоянно искать диалоги про стройку среди прочих личных сообщений.
Шаг 1
Провести замерыПервое, с чего начинается дизайн-проект, — это замер квартиры. Измеряют все углы, длину и высоту стен, проемов и подоконников. В кадастровом плане ошибка в полсантиметра роли не играет, но в дизайн-проекте такая погрешность может привести к тому, что на запланированное место не влезает письменный стол или сделанная на заказ столешница.
5000 Р
средняя стоимость замера квартиры в Москве
Конечно, всё можно измерить и самостоятельно, вооружившись уровнем и рулеткой, но я советую на этом этапе все же вызвать профессионального замерщика. Ошибиться с непривычки легко, и эти ошибки потом чреваты лишними расходами и переделками.
Услуги специалиста обошлись в 5000 Р, нам его посоветовала знакомая. Замерщик приехал, измерил квартиру за полчаса и через неделю отдал результаты.
Чертеж, который отдал нам замерщикШаг 2
Понять, что обязательно должно быть в квартиреПосле долгой жизни на съемных квартирах мы точно знали, что хотим оставить в прошлом маленькие шкафы, барную стойку на кухне, стеклянную неотмывающуюся шторку в душе и жесткий складной диван. Это помогло определиться с тем, что в нашей квартире должно быть обязательно: большая кровать с матрасом, ванна, а не душ, много места для хранения и полноценный обеденный стол. Всё это нам надо было разместить на 56 м².
/remont-brigada/
Как сделать ремонт квартиры
Я советую не просто перечислять все вещи подряд, а разбивать предметы по категориям: ванная, прихожая, кухня, гостиная, спальня, кабинет. Неважно, какой площади квартира и сколько там комнат. Главное — всё систематизировать.
Для описи имущества мы завели в основной таблице отдельную вкладку «Хранение»Шаг 3
Определиться со стилем ремонтаЕсли вы до конца не понимаете, что хотите, советую ориентироваться на уже готовые интерьеры. Я собирала фотографии всех интерьеров, которые мне нравились, и раскладывала их по папкам «Ванная», «Гостиная», «Кухня» и так далее.
«Пинтерест» — бесконечная галерея изображений по вашему запросу. Смотреть советую даже те проекты интерьеров, которые кажутся вам слишком дорогими. Там можно подсмотреть удачные решения для хранения, планировки и просто оформления. Я так нашла отличную идею для ванной комнаты — сделать три навесные корзины для разного типа белья.
| Идею такого дивана на балконе я нашла в «Пинтересте». Фото: «Пинтерест» | Вот как я ее реализовала |
| Такую идею для хранения белья я тоже подсмотрела в «Пинтересте». Фото: «Пинтерест» | Вот как я реализовала ее в нашем ремонте |
Я искала блоги по хэштегам «планировка», «ремонт», «дизайн-проект». Авторы выкладывают планировки ремонта, визуализации и чертежи, а еще дают советы. Можно найти хорошие решения или переделать что-то под себя. В одном дизайн-проекте я увидела люстру, которую потом нашла в интернет-магазине и купила в нашу квартиру.Я читала такие блоги:
@pavelalekseevdesign,
@inc_design_pro,
@olesya_shlyakhtina,
@nadyazotova,
@stalinka_v_izmailovo
В Инстаграме можно найти не только картинки, но и много другой полезной информации, связанной с ремонтом: пользователи описывают свои ошибки и находки, делятся поставщиками, магазинами и контактами бригад. Однажды я прочитала историю, как человек купил плитку, но ее не хватило. Ему пришлось срочно докупать плитку в другом месте — и она оказалась другого оттенка. Случай мне запомнился, поэтому в свою квартиру мы заранее закупили плитку с запасом.
Соцсеть «Инстаграм» принадлежит Meta — организации, деятельность которой признана экстремистской и запрещена на территории РФ
Крупные мебельные центры собирают из выставочных образцов готовые интерьеры.
Мы с мужем ездили в Икею, «Гранд» и «Румер». Советую фотографировать не только выставочные образцы, но и ценники, а также размеры мебели на них. А еще берите визитки: когда настанет время покупать мебель, не придется снова ехать в магазин.
Выбирайте магазины, которые расположены недалеко друг от друга. Так можно посетить несколько точек за один день. Будьте готовы много ходить
Сайты с готовыми интерьерами — это не только много фотографий, но и статьи с полезными советами для тех, кто делает ремонт. Я активно пользовалась сайтами «Хауз» и «Инмайрум» через их мобильные приложения. Удобно, что эти ресурсы позволяют выбрать какой-то определенный стиль, а система подберет подходящую коллекцию фотографий и статей про такие интерьеры. Вот мои подборки в мобильном приложении «Хауз» с понравившимися интерьерами:
Шаг 4
Сделать чертежиГлавная часть дизайн-проекта — это чертежи, сделанные на основе замеров. Советую нарисовать план квартиры на миллиметровке и снять с него несколько десятков копий.
Тогда не придется каждый раз рисовать его заново.
Чертежи в нашем дизайн-проекте
- Планировочное решение
- Коллажи
- Схема сноса и возведения перегородок
- Схема привязки освещения и выключателей
- Схема привязки розеток и выводов
- Развертка стен
- Карта отделки пола и стен
- Смета
/remont_prodolzhenie/
Ремонт квартиры с бригадой иностранцев
Чертеж
Планировочное решениеПрежде всего я советую определиться, будете ли вы делать перепланировку — разделять санузел, объединять кухню и гостиную, отгораживать гардеробную в спальне. Надо понимать, что перепланировку необходимо узаконить, а это не так просто. Про перепланировку в Т—Ж не раз писали, поэтому я не буду углубляться в тему ее согласования.
Когда станет понятно, как будут выглядеть помещения в квартире, надо решить, где встанет мебель. Мы поступили просто: нашли в интернете стандартные размеры мебели — стола, стульев, кровати, дивана — и перенесли их на миллиметровку в том же масштабе, что и замер квартиры.
Потом вырезали «мебель» и просто двигали ее по плану на миллиметровой бумаге. Есть специальные программы, которые позволяют делать все это на компьютере, — например, бесплатные Sweet Home 3D или Magicplan, но в них надо разбираться. Нам было удобнее расставлять бумажную мебель.
После ремонта общая площадь помещений немного уменьшится — например, штукатурка может добавить стенам до пяти сантиметров. А еще появятся шторы, плинтус, карнизы — для них тоже надо оставить место. Надо заранее спланировать, в какую сторону будут открываться двери: они не должны перекрывать выключатели.
/pereplan/
Как узаконить перепланировку в новостройке
Итоговый вариант планировки мы сфотографировали и загрузили изображение в свою таблицу, создав отдельный лист «Планировка».
Так выглядела наша работа над планировкой. На начерченном плане квартиры мы расставляли бумажную мебельЧертеж
КоллажиПосле планировки мы начали выбирать мебель и предметы интерьера.
Проще всего это, конечно, делать в фотошопе, но нам хватило и ворда. Я просто копировала с сайтов мебельных магазинов изображения мебели на белом фоне, обрезала их и перемещала по странице. Таким же способом удобно примерять и выбирать напольные покрытия, цвет стен, обои и светильники.
Фотографии мебели, которую планировали купить, мы тоже загружали в таблицу. Здесь же записывали размеры, цены и ссылки на интернет-магазиныСпланировать шкафы для гардеробной и кухни нам помог специальный сервис на сайте Икеи. Но надо учитывать, что у икеевской мебели нестандартные размеры.
Много интересных предметов интерьера я нашла у продавцов в Инстаграме. Например, красивые и недорогие светильники.
Правда, покупать через Инстаграм я не советую: слишком большая наценка. Я решила посмотреть, нет ли таких же светильников на «Алиэкспрессе», и нашла их же в четыре раза дешевле.
На этом этапе нам пришлось много ездить по магазинам. Перед тем как покупать что-то через интернет, хотелось увидеть вещи вживую. В магазинах я просила образцы материалов, чтобы дома посмотреть, как сочетаются оттенки и цвета. К концу ремонта у нас собралась целая коллекция образцов — плитки, обоев, краски, мебельного дерева и текстиля. Некоторые магазины дают образцы товаров напрокат. Это не бесплатно, но если сомневаетесь, будет ли бра сочетаться с обоями, лучше заплатить, привезти их домой и проверить, чем покупать, а потом сдавать обратно.
Если чего-то из мебели найти не удается, можно заказать в столярной мастерской. По ценам будет дороже Икеи, зато точно вашего размера и цвета. Нам нужна была столешница определенных габаритов — ее пришлось заказывать в мастерской. Столяров я искала тоже в Инстаграме.
Таких блогов много, и выбирать среди них тяжело. Я просила у мастеров контакты клиентов и ориентировалась на их рекомендации.
/fake-review/
Как распознать фальшивые отзывы в интернете
Определившись с интерьером и мебелью, мы отрисовали финальное планировочное решение, где вся мебель была расставлена по местам. Картинку сфотографировали и загрузили в основную таблицу.
Вот какая итоговая планировка у нас получилась После ремонта у нас дома скопилась целая коллекция образцов тканей и других материаловЧертеж
Схема сноса и возведения перегородокЕсли вы решили делать перепланировку, то первое, с чего начнутся ремонтные работы, — снос и возведение перегородок. Определившись с планировкой, мы перенесли замеры на миллиметровку и отрисовали границы перегородок, которые должны были появиться в будущем.
Я рекомендую еще раз сделать замеры квартиры в процессе ремонта, когда новые стены уже появятся. При возведении новых стен или выравнивании уже имеющихся размеры помещений могут немного измениться.
Пара сантиметров в одном углу, пара в другом — в итоге в комнату не влезет диван.
После возведения новых стен, нам пришлось «двигать мебель» на плане спальни — иначе открытая дверь всегда упиралась бы в кровать.
Наша схема сноса и возведения перегородокЧертеж
Схема привязки освещения и выключателейОпределившись со стенами и расстановкой мебели, мы перешли к электропроводке. Это самый непростой этап: надо разобраться в нормативах освещения, люменах, люксах и прочих тонкостях.
Как правильно организовать освещение в квартире, статья на сайте «Циан»
Что такое нормы освещенности жилплощади, разбор на сайте «Сам электрик»
Для расчетов нужно знать несколько параметров:
- Площадь помещения и высоту потолков мы измерили самостоятельно.
- Световой поток ламп посмотрели на упаковке.
- Нормы освещенности и поправочные коэффициенты на высоту потолков нашли в интернете.
Норму освещенности надо умножить на площадь комнаты и поправочный коэффициент.
Получившееся число мы разделили на световой поток наших лампочек. Итоговое значение — это количество ламп, которое необходимо для конкретного помещения.
Чем больше источников света, тем он будет ровнее. Если боитесь запутаться в расчетах, можно обратиться в магазин, где продают светильники, там помогут разобраться с нормативами.
Надо заранее решить, каким в квартире будет основной свет — встроенным или накладным. От этого зависит, какой будет потолок — подвесной, натяжной или простой крашеный. Встроенные светильники менее заметны: основная часть лампы прячется между потолком и перекрытием. Но сделать встроенный свет можно, только если у вас натяжной или подвесной потолок. Накладные светильники просто прикрепляются к потолку и выглядят более громоздко, зато ради них не придется жертвовать высотой потолка.
Помимо обычных люстр и встроенного света, мы делали вывод электропроводки под бра и световые подвесы. Для этого пришлось штробить стены — это тоже надо было учесть в схеме.
| На кухне у нас накладной свет | В ванной комнате — встроенный в подвесной потолок |
Дальше надо продумать, как все светильники будут включаться и выключаться. Выключатели бывают одинарные и двойные, обычные и проходные. Проходные выключатели позволяют управлять одной лампой сразу из нескольких мест: например, включить свет в коридоре можно в комнате, а выключить уже на кухне.
Еще одно гениальное изобретение электриков — мастер-выключатель, который гасит сразу весь свет в квартире. Такие часто устанавливают в отелях. Мы поставили один мастер-выключатель в спальне, чтобы не проверять перед сном, везде ли выключен свет. Второй установили у входной двери, чтобы не бегать по квартире, выключая свет во всех комнатах перед уходом. Если вы любите приглушенный свет, можно поставить диммер — устройство, которое позволяет управлять яркостью света.
Если вы планируете в квартире теплый пол, то для него тоже нужно предусмотреть выключатель.
/electricity/
Как не надо экономить на электричестве
Все расстояния от пола, углов и других ориентиров до выключателей надо обозначить на схеме, чтобы строители потом понимали, где что расположено.
Мы не обозначили на своей схеме высоту выключателей, пришлось потом объяснять всё рабочим на словахЧертеж
Схема привязки розеток и выводовДля этой схемы прежде всего нужно составить полный список розеток для каждой комнаты и указать, для каких приборов они будут использоваться. Главное, что я поняла: лишних розеток не бывает. В каждом помещении лучше сделать минимум по одной запасной розетке, чтобы потом не выяснилось, что в ванной некуда подключить фен во время работы стиралки, а в спальне не хватает розеток для всех заряжающихся устройств.
Розетки нужны для всей встроенной техники — микроволновке, духовке, холодильнику на кухне, колонкам, приставке, «Эпл-тиви» в гостиной и так далее.
Еще на схеме надо указать выводы под интернет, телевизионный кабель и стационарный телефон, если он у вас есть.
Так получилось, что мы рисовали разводку электрики в три часа ночи. Нам очень хотелось спать, но сдать всё прорабу нужно было срочно, к шести утра. Пока рисовали, спорили из-за каждой мелочи и чуть не разругались, еще и понаделали досадных ошибок. В идеале подобную кропотливую работу надо, конечно, делать на свежую голову и не торопясь.
Муж рисует схему привязки розеток в три часа ночи Итоговая схема розеток и выводовЧертеж
Развертка стенПредставьте себе, что ремонт закончен и вы стоите перед уже готовой стеной в спальне или на кухне. Эту картинку из головы надо перенести на бумагу. Изображение всех четырех стен в помещении — это и есть развертка. Такой чертеж надо сделать для каждой комнаты.
Когда делаете развертку для кухни и ванной, помимо материала стен, надо помнить и о том, как расположены коммуникации — вода и канализация.
Развертка стен туалета помогает понять, где будет стоять унитаз, на какой высоте установят раковину. В ванной надо не забыть про высоту душа. Ориентироваться лучше всего на рост членов семьи.
Важный момент — раскладка плитки, то, как она будет собираться в красивый узор. Плитка должна правильно состыковываться между собой, особенно если она не однотонная, а с рисунком или орнаментом.
| В ванной и на кухне одна и та же плитка. В ванной — раскладка ромбом | А на кухне — зигзагом |
Развертка помогает заранее представить раскладку плитки и рассчитать нужное количество материала. Рассчитывать надо с запасом, потому что плитка может разбиться.
Если тяжело сделать раскладку самому, можно обратиться в салон по продаже плитки — у продавцов есть для этого специальные программы. Но чаще всего это платная услуга.
В итоге ванная выглядит такВ развертку стен на кухне мы включили шкафы, полки, фартук из плитки, встроенную технику и светильники.
Перед тем как заказывать кухню в салоне, переписали все предметы, которые будут храниться в шкафах: посуду, столовые приборы, запас продуктов, специи и так далее. Стало понятно, сколько шкафов и ящиков нам нужно.
Делая развертку стен на кухне, надо не забыть про розетки для техники, вытяжку и коммуникации.
Так выглядел проект нашей кухни после первого посещения салона Так выглядит кухня после ремонтаЧертеж
Карта отделки пола и стенКарта отделки пола и стен — та же развертка, только здесь уже прописываются конкретные материалы и их количество. С ней мы справились быстрее всего, так как продумали всё, еще когда делали коллажи. Сложнее всего было нарисовать схему пола: в некоторых местах ламинат стыковался с плиткой, и надо было указать, где именно и какая в этом месте у плитки должна быть раскладка.
Схему отделки стен мы не делали, так как планировали почти везде их покрасить. Пришлось помучиться с выбором оттенков краски. Советую обязательно делать выкрасы — проверять цвет на реальной поверхности.
Для этого можно заказать в магазине пробники с несколькими оттенками, привезти их на стройку и попросить рабочих нанести на стену рядом друг с другом. Так проще сравнить цвета и понять, что действительно подходит.
Шаг 5
СметаКогда с чертежами было покончено, мы создали в таблице вкладку «Общая смета» и принялись считать расходы. Сюда же перенесли информацию обо всех работах и материалах, которые появились на предыдущих этапах создания дизайн-проекта. Заполнять эту вкладку пришлось очень скрупулезно и внимательно: слишком много всего надо было учесть.
Чтобы было проще, мы разделили все расходы на разделы: ванная, кухня-гостиная, спальня, балкон, прихожая, гардеробная. В каждом создали типовые подразделы: затраты на чистовые материалы, технику, сантехнику, мебель, электрику, свет. Кроме этого, был еще один большой общий раздел, где мы прописали расходы на черновую отделку и зарплату строителей. Здесь же учли затраты на расходные материалы — мешки для мусора, а также услуги сантехника из управляющей компании, вывоз мусора и тому подобное.
Каждый материал считали с запасом в 10—15%, не забыли и про стоимость доставки.
В итоге у нас получилась огромная таблица почти на 200 строк. Она практически полностью отразила все наши затраты на ремонт, включая покупку мелочей вроде лампочек и коробок.
Через четыре месяца, когда ремонт закончился, мы сверили плановый бюджет с реальным. Получился перерасход примерно в 20% — в основном из-за того, что в процессе появлялись новые идеи, не учтенные в смете. После переезда в новую квартиру мы ни разу не пожалели, что взялись делать дизайн-проект самостоятельно, и считаем, что у нас получилось идеальное жилье для нашей семьи.
Что я поняла в процессе ремонта
Всё надо делать строго по чертежам. Если чертежей нет, то работу лучше остановить, иначе есть риск, что строители могут сделать что-то на свой вкус. А он может отличаться от вашего. Значительно.
Что-то обязательно пойдет не так: плитка не будет стыковаться, ламината не хватит, а электрик уйдет в запой.
Жизнь непредсказуема, к таким проблемам надо заранее морально подготовиться и реагировать спокойно, а не паниковать.
Ремонт учит смирению. Когда краска на полтона темнее образца, а розетка на пять сантиметров ниже, чем на чертеже, — это нормально. Если быть перфекционистом, то быстро сойдешь с ума.
Переделывать стоит только принципиальные ошибки. Если дверь открывается не в ту сторону, в которую задумано, надо спросить себя: «Я смогу с этим жить?» Если нет — останавливаемся и переделываем. Если да — продолжаем ремонт.
Топ-16 лучших программ для проектирования домов и квартир-2021
3D-моделирование дома или квартиры поможет продумать все нюансы планировки и понять, какие потребуются материалы. Благодаря этому при реальном строительстве получится сделать работы максимально быстро и без ошибок. Если вы не планируете обращаться к дизайнеру, создать визуализацию можно самостоятельно в специальной программе.
В коротком видео рассказали о программах для проектирования.
Смотрите обзор, если нет времени на чтениеЛучшие 3D-редакторы
Как выбрать программу
ПО для компьютера
— Sweet Home 3D
— ArchiCAD
— HouseCreator
— Home Plan Pro
— ЛИРА-САПР
— SketchUp
— Дом-3D
— Дизайн Интерьера 3D
— Home and Landscape Design
— Chief Architect
— КЗ-Коттедж
— VisiCon
— Autodesk 3ds Max
Сравнительная таблица
Онлайн-редакторы
— Planoplan
— Roomtodo
— Planner 5D
При выборе редактора оцените несколько моментов.
- Русификация. Без нее освоить функционал будет непросто, особенно если вы не знаете иностранного языка.
- Удобство. Интуитивно понятный интерфейс сделает работу доступной даже для абсолютных новичков в вопросах 3D-моделирования.
- Функционал. Программ, которые бы помогли создать проект от начала до конца, пока не существует. Поэтому нужно заранее определить задачи, которые требуется решить.
И уже под них подбирать конструкторы. - Наличие инструкции или обучающего видео. Они существенно сократят время на изучение, позволив быстрее приступить к разработке проекта.
- Системные требования. Особенно важно, сколько софту требуется оперативной памяти и свободного места на диске, а также требования к процессору и монитору.
- Пробный период. Если вы присматриваетесь к платному редактору, сначала стоит попробовать его бесплатный триал. Он позволит познакомиться с интерфейсом, возможностями и понять, нужна ли вам полная версия.
А теперь расскажем подробнее про лучшие программы для проектирования домов для начинающих и не только.
Ландшафт
11 лучших программ для ландшафтного дизайна
1. Sweet Home 3D
Эта программа нужна для проектирования отдельных комнат.
В ней есть встроенный каталог мебели, а также функция, позволяющая изменить цвет любого элемента. Интерфейс переведен на русский язык. Для неопытных пользователей имеется встроенная система подсказок, поэтому создать свой первый проект будет несложно. После создания его можно сохранить в удобном формате. Приложение регулярно обновляется, разрешена загрузка новых моделей с официального сайта для использования в типовых планировках.
Лицензия: бесплатная неполная версия.
sweethome3d.com
2. ArchiCAD
Русифицированная программа для создания 3D-моделей и 2D-чертежей. Пользоваться ею разрешается 30 дней, потом будет предложено купить лицензию. Студенты и преподаватели архитектурных вузов могут продлить бесплатный период до года.
В ArchiCAD можно проектировать интерьеры, ландшафтные проекты, просчитывать количество материалов для составления простейшей сметы. В ArchiCAD встроен большой каталог мебели.
Также предусмотрена возможность монтажа видеороликов и проведения виртуальных прогулок по комнатам будущего дома.
Лицензия: платная. Есть пробный бесплатный период.
graphisoft.com
Организация и подготовка
Профессионалам и любителям: 9 лучших программ для дизайна интерьера
3. HouseCreator
Программа разработана для проектирования загородных домов из бруса. Есть редакторы фундамента, сруба, стен, перекрытий и крыши. Имеется 3D-визуализация. С помощью программы можно создать проект любой сложности, пронумеровать бревна, получить чертежи, планы и спецификации.
Лицензия: платная.
modul-company.com
4. Home Plan Pro
Легкая чертежная программа, которая подойдет для проектирования каркасных домов.
3D-визуализации нет, русификация тоже отсутствует, но интерфейс интуитивно понятен.
Программа позволяет разрабатывать внешний вид дома, проектировать отдельные помещения, учитывая расстановку мебели, размещение окон и дверей. Есть инструменты быстрого дублирования фигур. Готовые проекты сохраняются в популярных форматах, также их можно отправить по электронной почте.
Лицензия: платная. Есть пробный бесплатный период.
homeplanpro.com
5. ЛИРА-САПР
Специализированный продукт для расчета нагрузок на конструкции, в котором, помимо этого, можно моделировать здания и отдельные помещения. Из плюсов — чертежи можно строить в автоматическом режиме. Есть доступ к справочной информации, примерам и уже готовым проектировочным алгоритмам. Это свободно распространяемая версия, но есть и платные варианты с расширенным функционалом.
Лицензия: платная, есть некоммерческая и демо-версии.
liraland.ru
6. SketchUp
Профессиональное ПО, позволяющее создавать трехмерные модели домов, прилегающего ландшафта, интерьера и мебели. Все конструкции создаются с высокой точностью и подробной детализацией. Также есть функция формирования статистики расхода материалов.
В конструкторе используются простые инструменты, которые встречаются в других графических редакторах. Программа снабжается обучающими видео и руководствами. Минусом является отсутствие возможности оформления двухмерных планов.
Лицензия: платная, есть веб-версия для частного пользования без оплаты.
sketchup.com
7. Дом-3D
Дом-3D — простая программа для проектирования участка и дома, она предназначена для моделирования домов, мебели и дизайна интерьера, ландшафта. Каталог содержит много готовых моделей мебели, можно изменять материалы пола, стен и мебельных фасадов.
Продукт разрабатывался для непрофессионального использования, поэтому подойдет для тех, кто впервые сам проектирует дом и квартиру.
Лицензия: платная. Есть пробный бесплатный период.
dom7d.com
8. Дизайн Интерьера 3D
Удобная программа для планирования обстановки дома или офиса с бесплатным периодом использования. В каталоге более 100 предметов мебели и 450 вариантов отделочных материалов, все легко масштабируется, цветовая гамма настраивается. Отличается высокой скоростью работы, а система видеоподсказок упрощает работу для начинающих.
Можно выбрать один и вариантов стандартной планировки или нарисовать дом самостоятельно. Есть опция составления простых смет. Для расстановки мебели удобнее переключиться в 2D-план. Просмотреть результат можно будет, перейдя в режим 3D-моделирования. Хорошая альтернатива редактору Floorplan 3D, который перестали выпускать.
Лицензия: платная.
Есть демо-версия без оплаты.
interior3d.su
9. Home and Landscape Design
Условно бесплатная программа для создания трехмерных моделей и двумерных планов. Подходит для проектирования внутренней обстановки, внешнего вида дома и прилегающего пространства. Для большей реалистичности проект можно распечатать на картоне или бумаге и собрать макет дома.
Лицензия: платная.
punchsoftware.com
10. Chief Architect
Есть в двух версиях. Первая — программа для проектирования домов, есть возможность спланировать обстановку внутри дома. Вторая — подходит для планирования кухонь, ванных и интерьера. Минусом является отсутствие русификации, из-за чего начинающим будет сложно.
Лицензия: платная.
chiefarchitect.com
11. КЗ-Коттедж
Узконаправленная программа от российских разработчиков.
Предназначена для проектирования деревянных домов, весь функционал направлен на это. Возможности редактора позволяют спланировать архитектуру и внутренний дизайн дома в мельчайших деталях, работая с разными породами дерева и сечениями любого размера. Для упрощения работы некоторые действия (например, соединение бревен) автоматизированы.
Лицензия: платная для компаний. Есть возможность скачать бесплатную версию «КЗ-Редактор» и демо-версию «КЗ-Коттедж-Эксперт».
k3-cottage.ru
12. VisiCon
Отличный вариант для тех, кому нужно спланировать интерьер квартиры. Простой, интуитивно понятный интерфейс подойдет для новичков. У редактора много опций: можно расставить мебель, смоделировать пространство комнаты и сделать планировку квартиры.
Лицензия: платная (временно не продается). Есть бесплатная демо-версия.
visicon.ru
13.
Autodesk 3Ds MaxС помощью Autodesk 3Ds Max можно создавать реалистичный дизайн, детальные 3D-модели и вручную обрисовывать объекты. Мощный софт для проектирования, который используют в основном профессионалы: архитекторы, создатели визуальных спецэффектов, разработчики игр. Новичку будет непросто разобраться с программой, однако она считается одной из лучших на рынке.
Лицензия: платная. Есть бесплатная демо-версия.
area.autodesk.com
У каждого варианта есть плюсы и минусы. Для упрощения выбора основные моменты мы оформили в сравнительную таблицу.
| Название | Русификация | Каталог мебели | Расчет нагрузки | Версия для Windows | Версия для Mac OS | Лицензия | Подходит для новичков |
|---|---|---|---|---|---|---|---|
| Sweet Home 3D | да | да | нет | да | да | бесплатная неполная версия | да |
| ArchiCAD | да | да | нет | да | да | пробный бесплатный период | нет |
| HouseCreator | да | нет | нет | да | нет | платная | нет |
| Home Plan Pro | нет | да | нет | да | нет | пробный бесплатный период | нет |
| «ЛИРА-САПР» | да | нет | да | да | нет | есть некоммерческая и демо-версии | нет |
| SketchUp | да | да | нет | да | да | веб-версия для частного использования бесплатная | да |
| Дом-3D | да | да | нет | да | нет | пробный бесплатный период | да |
| Дизайн Интерьера 3D | да | да | нет | да | нет | демо-версия без оплаты | да |
| Home and Landscape Design | да | да | нет | да | нет | платная | да |
| Chief Architect | нет | да | нет | да | да | платная | нет |
| КЗ-Коттедж | да | нет | нет | да | нет | бесплатная демо-версия | нет |
| VisiCon | да | да | нет | да | нет | бесплатная демо-версия | да |
| Autodesk 3ds Max | да | да | нет | да | да | бесплатная демо-версия | нет |
1.
PlanoplanДля тех, кто не хочет устанавливать ПО на компьютер, редактор Planoplan предлагает бесплатную онлайн-версию. Современный и простой интерфейс подойдет новичкам, в программу встроен современный редактор мебели. Можно работать с 2D и 3D-проектами, а также визуализировать чертежи интерьеров. Из минусов браузерной версии — она работает достаточно медленно, а также в ней доступны только базовые функции.
Лицензия: бесплатная.
planoplan.com
2. Roomtodo
Украинский сервис, который полностью рассчитан на онлайн-использование. Есть русский и английский интерфейс. Редактор полностью бесплатный для личного использование, платная версия — только для компаний, которые хотят интегрировать его к себе на сайт.
Roomtodo позволяет использовать различные режимы просмотра 2D и 3D-моделей будущего интерьера. В редакторе можно не только нарисовать план квартиры или отдельной комнаты, но и подобрать отделочные материалы, расставить мебель, выбрать размеры окон и дверей, а также рисовать поверх чертежей.
Лицензия: бесплатная. Есть платная версия с расширенным функционалом.
roomtodo.com
3. Planner 5D
Этот проект существует как софт, онлайн-сервис и даже в виде мобильного приложения. Благодаря большому набору инструментов эта бесплатная программа для проектирования дома и квартиры позволяет создавать качественные визуализации и реалистичные рендеры. Интерфейс полностью на русском языке.
В Planner 5D можно не только создавать планировку и расставлять мебель, но и загружать свои текстуры для создания уникального интерьера.
Лицензия: бесплатная.
planner5d.com
Для создания качественного проекта необязательно платить огромные деньги специалистам или приобретать профессиональное ПО. Даже бесплатные редакторы могут обеспечить необходимый функционал и высокое качество изображений.
Материал подготовила
Наталья Уточкина
Художественные проекты для детей · Пошаговые уроки рисования для детей
Хватит искать.
Теперь вы можете получать пошаговые уроки рисования без предварительной подготовки ежедневно, и это бесплатно!Stop the Sunday Search
Для учителей, которые устали от того, что их воскресенья поглощаются планированием уроков, у Art Projects for Kids есть бесплатная ежедневная электронная почта , которая предлагает простые в использовании художественные проекты, которые понравятся вашим ученикам — без когда-либо открывая Pinterest.
Качественные уроки готовы к использованию!
Раньше требовалась целая вечность, чтобы найти уроки рисования, связанные с школьной программой и соответствующие возрасту. Мои попытки «состарить» или «состарить» проекты до нужного возрастного уровня были трудами любви, и , а не , всегда были успешными. Благодаря Художественные проекты для детей теперь у меня есть качественные уроки , готовые к использованию , все в одном месте!
Ронна Трейлор,
Учитель рисования
Мне нравятся пошаговые инструкции!
Раньше мне было трудно найти уроки рисования.
С Художественные проекты для детей, мне нравится, что уроки не сложны для понимания или выполнения, потому что у меня нет времени на изучение уроков. Мне нравится минимальная подготовка , просто откройте ее на моей доске и следуйте вашим указаниям.
Бриттани МакХарг,
Классный руководитель
Осмысленно и легко!
Самой большой проблемой для меня было найти доступные идей с использованием обычных художественных принадлежностей. Мне нравится, что ваши произведения искусства так просты в использовании и всегда под рукой, когда они мне нужны.
Corene,
Классный руководитель
Увлекательные, значимые творческие занятия, требующие на 90% меньше времени на планирование придумать на Google и Pinterest. Или рыскать Учителя платят учителям за
дорогие дополнения к вашей местной учебной программе.
Или попытаться принудительно вписаться в подавляющую школьную программу по искусству, которая требует всевозможных причудливых материалов (все в ваше «свободное» время, верно?).Но даже после того, как вы потратите большую часть воскресного дня на поиски идей, все, что вы найдете, это один или два хилых планов уроков с инструкциями, которым так же легко следовать, как и форме IRS 13909. Вам нужен более быстрый способ найти развлечение арт-проекты с удобными направлениями, которые будут займите своих детей. Но… как? Введите: Художественные проекты для детей.
ХУДОЖЕСТВЕННЫЕ ПРОЕКТЫ ДЛЯ ДЕТЕЙ, АВТОР, КЭТИ БАРБРО
Подготовьте свои планы уроков рисования без усилий
Художественные проекты для детей в простой и увлекательный процесс (для учащихся И преподавателей), который повышает уверенность учащихся и позволяет им творить с удовольствием.
Каждый из ваших детей может задать собственный темп создания произведений искусства, которыми они смогут гордиться. И вы можете чувствовать себя в силах привить своим детям радость творчества (даже если вы сами склонны к левополушарному, «стандартному» мышлению).
Но после 20 лет работы в классе учителем рисования я также знаю, каково это — отказываться от каждого воскресного дня (и большинства вечеров), чтобы планировать уроки на неделю. Вы не должны жертвовать всем своим свободным временем, чтобы преподавать своим ученикам содержательные уроки искусства. Вот почему в Художественные проекты для детей , вы найдете множество простых пошаговых уроков, которые понравятся вашим детям , в одном месте . В результате вы получите мгновенные дополнительные 90 минут обратно в выходные — просто подпишитесь на нашу электронную почту (и это бесплатно!).
Комплексные проекты по истории искусства
ПОСМОТРЕТЬ ВСЕ >
Расслабьтесь, зная, что уроки рисования без предварительной подготовки уже на пути к вашему почтовому ящику
Нет больше чувства вины за то, что у вас недостаточно пропускной способности, чтобы продуманно интегрировать больше художественных проектов в ваши уроки.
Не более съеживается из-за того, что не выдвигает более «креативных» идей и проектов для размещения на ваших досках объявлений. Больше не сомневайтесь в своей способности преподавать искусство. Больше не нужно чувствовать себя беспомощным, когда ваши дети слишком боятся творить.
Вместо этого насладитесь классной комнатой, полной настойчивости и игривости . Просыпайтесь с нетерпением, ожидая, когда вы войдете в класс, вооружившись вашими простыми планами уроков и даже видео, которые вы можете воспроизвести для своего класса. Улыбайтесь, наблюдая, как ваши творческие дети обнаруживают, что да, они МОГУТ получать удовольствие от творчества. Почувствуй себя по-настоящему подготовленным (может быть, впервые) . Подарите себе расслабляющее воскресенье с поднятыми ногами. Может быть, даже чтение книги, которая не вышла из детского отдела библиотеки. И знайте, что ваше (бесплатное) членство по электронной почте в Art Projects for Kids приводит в действие все это, как и ваша волшебная фея-крестная.
И даже когда вы отдыхаете? Этого не будет.
Я люблю пошаговые инструкции!
Моя самая большая проблема в обучении искусству заключалась в том, чтобы найти доступные и выполнимые проекты для моих учеников начальной школы. С Художественные проекты для детей, Мне нравится, что я вижу точку зрения законного педагога по искусству. Уроки позволяют легко различать «исключительных» учеников без чрезмерного упрощения, а проекты интересны для моих детей.
Бонни Т.,
Классный руководитель
Действительно повышает их уверенность в рисовании!
Раньше я часами искала проекты, которые мои дети могли бы получать удовольствие и успешно выполнять. Художественные проекты для детей идеально подходит, когда мне срочно нужна подсказка. Загрузки дали моим ученикам настоящее искусство для изучения, и они стали более уверенными в своих силах благодаря пошаговым инструкциям.
Джессика Х.,
Учитель рисования
Хорошая художественная работа, подходящая для детей!
Разбиение художественных проектов на простые шаги раньше занимало целую вечность, а инструкции на других сайтах были не такими удобными для моих учеников.
Мне нравится, что Художественные проекты для детей содержит популярных персонажей и животных, которые нравятся учащимся, с пошаговыми учебными пособиями, которые позволяют мне учить моих учеников навыкам независимого досуга.
Лори Э.,
BCBA (Behavior Analyst)
Найдите буквально любую картинку, которую ваши учащиеся хотят нарисовать, все в одном месте
ПоискПросмотр идей проектов по уровням оценок
Вам не нужно столько времени, сколько вы думаете, чтобы интегрировать искусство в свой класс
Вам не придется тратить весь день на поиск идей в Pinterest. Вам не придется часами готовиться или изучать уроки рисования. Вам не нужно будет просить администрацию или родителей о дорогих расходных материалах или покупать дорогостоящие учебные программы.
Все, что вам нужно сделать, это сказать «да» ежедневной электронной почте Art Projects for Kids и наблюдать за тем, как 3152 минуты, которые вы теряете каждый год в поисках занятий искусством, постепенно возвращаются в вашу жизнь.
Потому что какой занятый учитель не хочет еще 3152 минуты в год, не делая вообще ничего по-другому? Получайте ежедневную электронную почту Art Projects for Kids , и позвольте нам сделать всю тяжелую работу за вас.
Найдите больше простых пошаговых уроков рисования в нашем магазине
Новинки из магазина
Совместные шаблоны настенной росписи для детей
Посмотреть все >
Магазин · Художественные проекты для детей
Показано 1–16 из 107 результатов
Сортировать по популярностиСортировать по среднему рейтингуСортировать по последнимСортировать по цене: от низкой к высокойСортировать по цене: от высокой к низкой
- 9,00 $
Этот проект урока цвета представляет собой веселое изучение теплых, холодных и дополнительных цветов, а также создает красочный сувенир детской руки.
Электронная книга включает в себя:- Инструкции для учителя
- Учебное пособие для учащихся
- Цветовой круг
- Восемь шаблонов фонов
- Образец полной страницы
Добавить в корзинуПродолжитьЗагрузкаГотово - 25,00 $
Получите коллекцию веселых и простых руководств в одной электронной книге!
• Избавьтесь от тайн рисования с помощью четких пошаговых инструкций
• Выберите из коллекции животных, пейзажи, проекты зданий и многое другое
• Распечатайте свой собственный рисунок на обложке, чтобы сделать свой собственный переплет
Добавить в корзинуПродолжитьЗагрузкаГотово - 12,00 $
Сделайте свою собственную крупномасштабную фреску, чтобы насладиться работой Винсента Ван Гога и одной из его самых известных картин.
Этот загружаемый PDF-файл включает:
- Шаблон из 25 страниц (48″ x 36″ после завершения)
- Шаблон из 36 страниц (58″ x 43″ после заполнения)
- Инструкции по сборке
- Руководство по окрашиванию
- Страница раскраски одной страницы
Добавить в корзинуПродолжитьЗагрузкаГотово - 12,00 $
Сделайте свою собственную крупномасштабную фреску, чтобы насладиться работами Винсента Ван Гога и его знаменитыми картинами с подсолнухами.

Этот загружаемый PDF-файл включает:
- Шаблон из 25 страниц (36″ x 48″ после завершения)
- Шаблон из 36 страниц (43″ x 58″ после заполнения)
- Инструкции по сборке
- Руководство по окрашиванию
- Одностраничная раскраска Страница
Добавить в корзинуПродолжитьЗагрузкаГотово - 12,00 $
Создайте свою собственную крупномасштабную фреску в память об удивительной жизни доктора Мартина Лютера Кинга.
Этот загружаемый PDF-файл включает:
- 16-страничный шаблон (32″ x 40″ фреска)
- Шаблон на 25 страниц (настенная роспись 40″ x 50″)
- Шаблон на 36 страниц (настенная роспись 48″ x 60″)
- Инструкции по сборке
- Руководство по окрашиванию
Добавить в корзинуПродолжитьЗагрузкаГотово - 10,00 $
Черно-белое изображение, окружающее ярко окрашенное лицо, создает великолепный контраст.
В эту электронную книгу входят:
- 12 шаблонов портретов с фото оригинальной картины
- Шаблоны для печати
- Полноразмерные направляющие для рисования
- Руководство по рисованию на одной странице
- Рисунки на обложках для самостоятельного изготовления переплета
Добавить в корзинуПродолжитьЗагрузкаГотово - 10,00 $
Сделайте фреску в память о художнике Густаве Климте, известном своей богато украшенной картиной «Древо жизни».

Просто распечатайте, раскрасьте и склейте вместе, чтобы быстро и легко создать настенную роспись в классе, которую можно закончить в кратчайшие сроки.
Особенно, если все работают вместе.
Добавить в корзинуПродолжитьЗагрузкаГотово - 10,00 $
Сделайте фреску в память о художнике Сёра, известном своей огромной картиной «Воскресенье в парке».
Просто распечатайте, раскрасьте и склейте вместе, чтобы быстро и легко создать настенную роспись в классе, которую можно закончить в кратчайшие сроки.
Особенно, если все работают вместе.
Добавить в корзинуПродолжитьЗагрузкаГотово - 12,00 $
Сделайте свою собственную крупномасштабную фреску, чтобы насладиться работой Эдварда Мунка и его знаменитой картиной «Крик».
Этот загружаемый PDF-файл включает:
- 9 шаблонов страниц (21″ x 31″ после завершения)
- Шаблон на 25 страниц (41″ x 50″)
- Шаблон на 36 страниц (50″ x 60″)
- Руководство по раскрашиванию с цветовой кодировкой и инструкции по сборке
- Одностраничная раскраска
- $15.
00 Коллекция из 15 арт-проектов автопортретов, связанных с:
Пауль Клее • Кубизм • Статуя Свободы • Большое абстрактное лицо
Хундертвассер • Рисование • Лего • Солнцезащитные очки • Модильяни • Мои цели
Чак Клоуз • Половина Портрет • Майнкрафт • Плакат о розыске • Лихтенштейн
Добавить в корзинуПродолжитьЗагрузкаГотово - 10,00 $
Создайте свою собственную масштабную фреску, чтобы прославить мир оптического искусства.
Этот загружаемый PDF-файл включает:
- 24-страничный шаблон (окончательный размер 30″ x 59″)
- Инструкции по сборке
- Руководство по окрашиванию
Добавить в корзинуПродолжитьЗагрузкаГотово - 12,00 $
Создайте свою собственную масштабную фреску, чтобы привлечь внимание к вымирающим животным.
Эта загрузка в формате PDF включает:
- 9 шаблонов страниц (24″ x 24″, когда они заполнены)
- Шаблон из 36 страниц (48″ x 48″ в готовом виде)
- Инструкции по сборке и руководство по окрашиванию
- Одностраничная раскраска
Добавить в корзинуПродолжитьЗагрузкаГотово - 15,00 $
Коллекция из 20 уроков рисования различных типов ландшафтов, встречающихся по всему миру.

Каждый из чертежных проектов включает:
- Пошаговое руководство
- Чертеж готового образца
- Образец линейного чертежа для справки
Есть даже обложка, которую можно распечатать и сделать, как эта!
Добавить в корзинуПродолжитьЗагрузкаГотово - 10,00 $
Если вы хотите создать собственную версию некоторых известных шедевров, но у вас есть лишняя дверь или небольшая стена, попробуйте эту мини-коллекцию настенных росписей.
Вы можете насладиться работами Ван Гога, Анри Матисса и Густава Климта.
Просто распечатайте, раскрасьте и склейте вместе, чтобы быстро и легко создать мини-наклейку, которая будет закончена в кратчайшие сроки.
Особенно, если все работают вместе.
Добавить в корзинуПродолжитьЗагрузкаГотово - 12,00 $
Создайте свою собственную крупномасштабную фреску, чтобы прославить тропическую жизнь как над землей, так и под водой.

Этот загружаемый PDF-файл включает:
- 12-страничный шаблон (42″ x 20″ после завершения)
- Шаблон из 24 страниц (64″ x 30″ после заполнения)
- Инструкции по сборке и руководство по окрашиванию
- Одиночная страница раскраски
Добавить в корзинуПродолжитьЗагрузкаГотово - 36,00 $
Этот Jumbo Pack включает в себя четыре переработанных электронных книги по искусству:
«Принципы дизайна», «Элементы искусства», «Рисование достопримечательностей мира» и «Египетский рисунок».
Добавить в корзинуПродолжитьЗагрузкаГотово
Часть 4 нашей стратегии визуального мышления
Часть четвертая нашей серии стратегий визуального мышления
Как нарисовать план проекта — это четвертая часть нашей серии стратегий визуального мышления. Вы можете найти первую часть здесь, вторую часть здесь и третью часть здесь.
Мы достигли финальной стадии нашей стратегии визуального мышления для решения проблем и достижения целей! Вы провели исследование, у вас появились идеи, и теперь пришло время планировать.
Существует множество способов форматирования вашего стратегического плана, поэтому мы познакомим вас с одним вариантом и в конце покажем альтернативный пример.
Инструменты для рисования визуального плана проекта
Если вы работаете на бумаге меньшего формата, вы можете работать на нескольких страницах, чтобы было достаточно места для рисования. Если вы работаете с большим форматом, подойдет одна страница.
Вы также можете сделать набросок карандашом, проанализировать свой план и убедиться, что он вас устраивает, а затем обвести его маркером, чтобы создать окончательную версию. Скорее всего, ваш план может развиваться и меняться по мере того, как вы добавляете в него больше контента.
Как составить план проекта
В нашем примере общая формулировка проблемы была следующей:
«Я хочу решить проблему высокого углеродного следа и производства отходов, чтобы внести свой вклад в изменение климата».
Поскольку мы планируем будущее, в котором мы сократим свой углеродный след, мы используем стрелку в качестве контейнера для нашей стратегии с нашей целью в конце. Стрелка должна быть достаточно большой, чтобы содержать стратегию, поэтому нарисуйте большую стрелку посередине страницы с небольшим пространством вверху.
Для нашего визуального плана мы собираемся упростить утверждение до «Внести свой вклад в изменение климата». Менее многословное утверждение будет легче записать, и оно будет выделяться визуально. Отображение вашей конечной цели в вашем плане является важным визуальным напоминанием, поскольку вся ваша стратегия всегда должна быть привязана к ней.
В ходе нашего исследования мы определили четыре подцели, которые позволят нам достичь нашей цели:
- Ешьте меньше мяса
- Поддержка экологических некоммерческих организаций
- Сокращение отходов
- Экономия энергии
Поскольку все подцели довольно разные, каждая из них будет иметь свой собственный набор задач, необходимых для их достижения, но они не обязательно зависят друг от друга.
Таким образом, вы можете работать над этими несколькими подцелями одновременно. Мы собираемся раскрасить наши задачи, чтобы сопоставить каждую из этих подцелей, создав ключ справа от нашей стрелки.
Далее мы разделим наш план на этапы. Основываясь на мозговом штурме из последнего упражнения, у нас будет хорошее представление обо всех задачах, которые нам нужно выполнить для достижения этой цели, и о том, к каким категориям они относятся. В этом примере мы называем задачи, которые мы можем выполнить немедленно, «фазой 1», задачи, которые требуют постоянной приверженности, являются следующим шагом и будут называться «текущими», а задачи, которые позволяют нам оценить, достигли ли мы нашей цели. цель будет называться «финальной». Разделите стрелку вверх и пометьте каждую фазу сверху вниз.
Ваши фазы будут зависеть от вашей цели — у вас может быть другое количество или тип фаз, чем в нашем примере. В качестве альтернативы, если ваши подцели расположены в хронологическом порядке, вы можете разделить свою область на разделы, по одному для каждой подцели.
Разбейте задачи по типам
Далее мы заполним каждый раздел подцелей задачами, которые необходимо выполнить для достижения этой цели. В рамках каждой подцели у вас могут быть разовые задачи или текущие задачи. У вас также могут быть легко выполнимые, одиночные задачи и долгосрочные, более сложные задачи.
Начните с создания подраздела для более сложных задач. Запишите свои задачи здесь, думая о том, как каждую из них можно разбить на более мелкие, более управляемые задачи. Запишите эти более мелкие задачи в разделе ниже. Задача, которая выполняется один раз, может быть отмечена флажком, в то время как текущая задача всегда должна быть видна в вашем плане. В нашем примере мы разбили фазу 1 на 2 части: задачи, которые необходимо выполнить, и предметы, которые нужно купить. Оба функционируют как контрольный список, поэтому пользователь может видеть свой прогресс и то, что ему осталось сделать или купить.
Повторите этот процесс для оставшихся подцелей.
Вы можете иметь свои визуальные исследования и идеи под рукой, чтобы помочь в этом процессе.
Добавить ориентиры
Поклонники методологии целей SMART всегда рекомендуют создавать измеримые цели. Вы можете добавить в визуальный план определенные показатели или контрольные показатели, связанные с вашей целью! В нашем примере мы поместили наши метрики рядом с заголовком и включили текущие эталонные значения, а также наши идеальные метрики.
Завершите визуализацию
Простой, легко нарисованный визуальный значок добавит контекста и визуального интереса к вашей визуальной стратегии! Узнайте больше о рисовании простых визуальных значков здесь.
Когда визуализация стратегии будет завершена, сделайте шаг назад и просмотрите ее. Вы можете отложить его и вернуться позже, чтобы внести окончательные изменения. Мы рекомендуем сначала набросать ваш план карандашом, а затем обвести его маркерами после того, как вы будете довольны окончательным дизайном.
Проект надежного дома должен быть еще и эффектным!
И уже под них подбирать конструкторы.