Панели железобетонные стеновые: размеры ГОСТы
Издавна строительным материалом служили кирпич, камень, дерево. В прошлом веке был разработан новый вид строительства – возведение вертикальных стен из армированных бетонных плит стандартных размеров. Разработаны серии стеновых панелей различного назначения.
Созданы альбомы чертежей для панелей разного вида, с расчетами, учитывающие особенности эксплуатации. ГОСТы на железобетонные стеновые панели предписывают, типоразмеры, виды бетона и стали для закладных и арматуры, место установки.
Преимущества стеновых железобетонных панелей
Стеновые панели из бетона изготавливаются в условиях промышленного производства. Представляют собою бетонную конструкцию с каркасом из арматуры. Могут использоваться при строительстве внутренних и наружных стен, быть монолитными или с теплоизоляционным покрытием. При их производстве задействованы два материала, а готовое изделие сочетает в себе все лучшие их характеристики:
- армированная конструкция добавляет прочность бетону, особенно при работе панели на растяжение и изгиб;
- стеновой железобетон легкий;
- не представляет труда изготовить стеновую панель любой формы;
- дешевые;
- надежные и долговечные;
- железобетонные панели для стен не разрушаются от действия атмосферных осадков, солнечных лучей, не боятся перепадов температур;
- при пожаре не горят и не плавятся;
- устойчивы к биологическому и химическому воздействию.

Преимущества использования плит из железобетона
Пошаговая инструкция возведения своими руками
Возведение жилого дома из ЖБ панелей проходит в несколько этапов.
Разработка проекта и инженерных коммуникаций. Ввиду того, что бетонные плиты для стен и перекрытий изготавливаются на заводах, проект будущего дома должен быть точным, подробным и тщательно продуманным.
Во время строительства нельзя будет изменить расстановку дверей, окон и планировку комнат. Заранее должно быть рассчитано расположение вентиляционных каналов и иных коммуникаций.- Строительство фундамента. Для жилого дома из ЖБ панелей следует выполнить надежное основание. Поэтому, закладывается глубокий монолитный ленточный фундамент или основание из бетонных плит.
- Монтаж панелей. После того, как будет готов фундамент, начинают устанавливать стены и перекрытия. На данном этапе не обойтись без помощи автокрана и профессиональных монтажников.
Для монтажа панелей необходим кран грузоподъемностью не менее 120 т и бригада монтажников в количестве 4-6 человек.
Панели устанавливают в проектное положение на подстилающий слой раствора на фундамент, фиксируя при помощи временных опор. Все конструкции и детали одного этажа устанавливаются в течение 1-2 дней. Для скрепления панелей между собой на вертикальной стороне плиты присутствуют петли, расположенные на расстоянии 400-500 мм друг от друга.В эти петли вставляется арматура и приваривается. Место соединения панелей заделывается постепенно. Первым делом мастерят опалубку и заполняют ее бетонным раствором стыковочные швы по контуру несущего слоя плит. Это делает бетонную конструкцию монолитной.
После того как бетон застынет, временные опоры убирают и, при необходимости, начинают устанавливать плиты второго этажа. Финишная герметизация стыков производится после того, как коробка дома будет полностью собрана.
Промежутки по контуру заделывают полиуретановой пеной или минеральной ватой.
Следующий шаг – «зачеканивание» швов наружного слоя ЖБ конструкций. - Монтаж перекрытий. В доме из панелей используют сборные перекрытия, складывающиеся из многопустотных конструкций марок ПК и ПБ. Эти плиты имеют хорошую несущую способность и звукоизоляцию.
- Строительство кровли. После возведения стен и перекрытий начинаются работы по строительству крыши. Выбор материала для крыши для такого дома не имеет значения. Это может быть дерево, кирпич, блоки.
- Отделка. Современные бетонные панели производят такими, которые не требуют лишней работы. Внутренний бок панели достаточно лишь покрыть финишной штукатуркой, после чего ее можно окрашивать, оклеивать обоями или декорировать любым другим способом.
Если заводской декор наружных стен отсутствует, то поверхность можно отделать любым способом: декоративной штукатуркой, сайдингом, природным камнем, покрасить.
Классификация стеновых железобетонных панелей
При классификации бетонных панелей для стен руководствуются назначением и конструкцией изделий.
Существует несколько типов классификации.
По назначению разделяют:
- для строительства многоэтажных домов;
- идущие на изготовление цокольных этажей, подпольев, чердачных помещений;
- для жилищного строительства;
- на возведение промышленных объектов.
Схема стройки дома с использованием железнобетонной стеновой панели
По конструктивным особенностям:
Стеновые железобетонные панели по количеству слоев
- цельные;
- составные;
- из бетона нескольких видов.
По количеству слоев бывают в один, два и три слоя. Однослойные — самые легкие, при их изготовлении используется материал одной марки. Чтобы упростить дальнейшую обработку, на внутреннюю часть плиты наносится специальное цементное покрытие.
Двухслойные цельные состоят из двух слоев: несущего внутреннего из армированного бетона M150 и наружного — легкого теплоизолирующего материала марки M35 – M75. Трехслойные плиты напоминают сэндвич.
Состоят из двух железобетонных плит с внутренним слоем утеплителя из экструдированного пенополистирола. Для соединения слоев используется сварной каркас из арматуры. Конструкцию отличает большой вес и стоимость, но, с точки зрения производства, повышенные затраты оправданы.
Строение некоторых марок трехслойных панелей
Железобетонные панели по-разному воспринимают нагрузки, разделяются на следующие типы:
- навесные;
- несущие;
- самонесущие.
Строить самому или заказать услугу под ключ
Можно возвести частный дом самостоятельно, привлекая к каждому этапу строительства отдельные бригады рабочих, или заказать выполнение данной задачи в профессиональной строительной фирме. Оба варианта имеют свои явные плюсы и минусы, но имеются и скрытые нюансы, которые тоже необходимо учитывать.
Возведение нового дома самостоятельно
Строительство дома из ЖБИ панелей — задача не для самостоятельного выполнения.
Рассмотрим вариант строительства из привычных материалов:
- Создание проекта.
Это сложные чертежи и расчеты, которые необходимо заказать в специальных организациях. - Получение необходимых разрешений для строительства, что может быть затянуто по срокам из-за бюрократических проволочек.
- Выбрать, закупить и доставить необходимые строительные материалы, что затратно по времени и сложно без строительного опыта.
- Само строительство. Если проект подразумевает капитальное строение, а не летнюю дачу, то без привлечения строительных бригад не обойтись. Не ошибиться в квалификации наемных работников и оценить качество их работы по завершении строительства — сложная задача для непрофессионала.
Вероятность того, что стоимость дома при строительстве своими силами будет больше, чем планировалось изначально, высока. Необходимо учитывать, что могут возникнуть затраты на переделку некоторых работ спустя время.
Строительство малоэтажного дома под ключ
При заказе все вопросы по созданию проекта, получению разрешений и организацию самих работ берут на себя профессионалы, что экономит время и силы заказчика.
Суммы, условия выполнения и сроки будут прописаны в договоре, что гарантирует выполнение полного объема работ без дополнительного контроля и затрат со стороны заказчика. Также время строительство дома сокращается в сравнении с самостоятельным возведением.
Наименование стеновых плит
Стеновые железобетонные панели делятся на несколько типов.
| Наименование | Описание | Маркировка |
| Для надземных этажей | Однослойные цельные | 1НЦ |
| Двухслойные цельные | 2НЦ | |
| Трехслойные цельные | 3НЦ | |
| Однослойные составные | 4НС | |
| Двухслойные составные | 5НС | |
| Трехслойные составные | 6НС | |
| Для цоколей и технических подвалов | Однослойные цельные | 1НЦ |
| Двухслойные цельные | 2НЦ | |
| Трехслойные цельные | 3НЦ | |
| Двухслойные составные | 5НЦ | |
| Трехслойные составные | 6НЦ | |
| Для чердаков | Однослойные цельные | 1НЧ |
| Двухслойные цельные | 2НЧ | |
| Двухслойные цельные | 3НЧ | |
| Однослойные составные | 4НЧ | |
| Двухслойные составные | 5НЧ | |
| Трехслойные составные | 6НЧ |
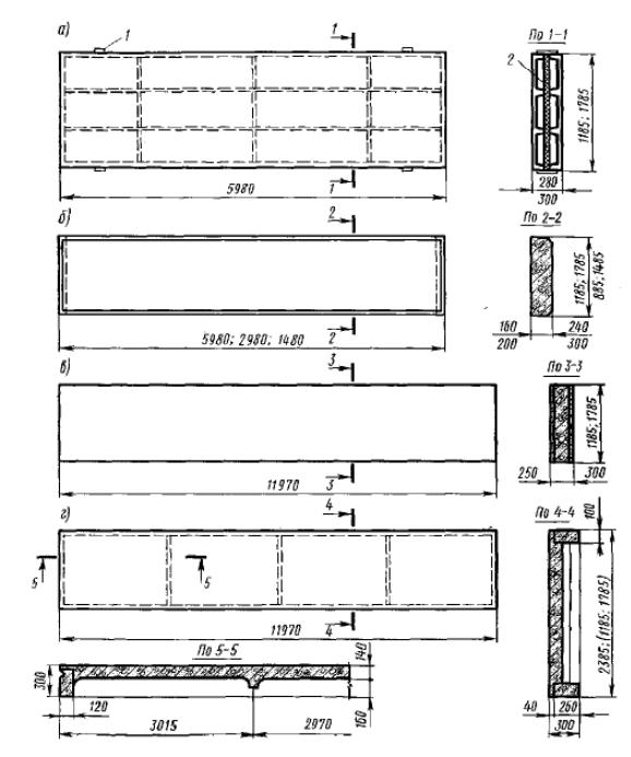
Размеры стеновых конструкций
При строительстве жилых домов применяются стандартные изделия шириною с высоту этажа и длиною на одну или две комнаты.
Внешние стены могут иметь дверные и оконные проемы, в плитах для перегородок только дверные проемы. Для производственных помещений идут изделия длиною 6, 9 и 12 метров. В зависимости от количества слоев стеновые панели имеют толщину в пределах 20–50 см.
Изготовление бетонных панелей происходит в строгом соответствии с требованиями ГОСТ 31310-2005, ГОСТ 13015-2003
Размеры бетонных панелей для стен регламентированы ГОСТом. Они считаются главным параметром при проектировании зданий. Габариты и величины проемов задаются в проектах.
Технические требования к ЖБИ
К железобетонным конструкциям вообще и стеновым панелям в частности предъявляется целый ряд технических требований:
- Точные размеры и геометрические формы. Оптимальная конструкция узлов и соединений. Точное местонахождение закладных элементов.
- Соответствие веса и размеров сборных железобетонных конструкций эксплуатационным возможностям грузоподъемных и транспортных средств.

- Габариты ЖБИ конструкций в пределах допусков и отклонений, установленных ГОСТ 130-15.4—84.
- Размеры закладных элементов соответственно проектным значениям с погрешностью не более ±5 мм.
- Допустимое смещение осей закладных элементов для колонн, балок и ферм не больше 5 мм, для других ЖБИ — не более 10 мм.
- Расположение закладных деталей заподлицо с поверхностью железобетонных изделий или выше не более 3 мм.
- Качественная обработка изделий и отсутствие необходимости в дополнительной отделке.
Марки бетона
К материалу стен предъявляются высокие требования по прочности и плотности, он должен хорошо прилегать к арматуре и предохранять от коррозии. В зависимости от условий эксплуатации стен, от материала дополнительно потребуется морозоустойчивость и жаростойкость, водонепроницаемость, устойчивость к агрессивной среде, перепадам температур и атмосферным осадкам.
Для изготовления ЖБ плит используют следующие виды бетона:
- на изготовление наружных стен жилых помещений идет тяжелый с утеплителем, легкий пористый или ячеистый бетон;
- для стен неотапливаемых строений применяют тяжелые бетоны класса от B15;
- однослойные выполняют из бетона легкого от M50, ячеистого автоклавного M25 и выше;
- на изготовление трехслойных панелей идет бетон тяжелый марки от M150 и легкий M100 и выше.

Таблица марок и классов бетона
Качество поверхности
Строение железобетонных стеновых панелей
Для оценки качества поверхности стеновых железобетонных панелей используется четыре класса: от A3 до A7. Они задаются по проекту, при отсутствии данных принимают A6 и A7. Критерием оценки качества выбраны допуски прямолинейности и величина неровностей. Чем меньше цифра, тем более высокие требования к поверхности.
На железобетонной плоскости не допускаются сколы, трещины, раковины, пятна жира и ржавчины. Не должны выступать участки арматуры, если это не монтажные петли или рабочие выпуски. Чтобы добиться требуемого качества A3 и A4, на поверхности выполняется шлифовка и затирка дефектов.
Железобетонные изделия относятся к самым популярным в строительстве. Они позволяют за короткие сроки возводить качественные жилые дома и промышленные помещения невысокой стоимости.
Как осуществляется транспортировка и хранение железобетонных изделий
Транспортировку ЖБИ обычно выполняют на грузовых машинах.
Крупногабаритные ЖБИ перевозят на специальных транспортных средствах. Стеновые панели доставляют на панелевозах. Разгружают ЖБИ с помощью крана. Складирование ЖБИ выполняется согласно требованиям ГОСТ и ТУ. Железобетонные изделия складывают в штабели монтажными петлями вверх. Их положение должно соответствовать условиям установки при строительных работах. Во время перевозки и при складировании возможны повреждения ЖБИ.
Поэтому важно соблюдать правила хранения ЖБИ, даже если строительство планируется в ближайшие дни. Участок для складирования должен иметь ровную поверхность. Следует исключить контакт ЖБИ с землей. Если нет навеса, пользуются укрывным материалом. Между плитами перекрытий прокладывают деревянные бруски для снижения напряжения.
Маркировка панелей
Маркировка наносится на реберной поверхности изделия несмываемой краской. Включает в себя три группы из букв и цифр, для их разделения используется тире. Определен следующий порядок:
Таблица марки и размеров плоских железобетонных плит
- первая цифра относится к конструктивным особенностям, для монолитных конструкций — от 1 до 3, составные маркируются числами 4–6;
- буквы B и H указывают на принадлежность ЖБИ к внутренней или наружной поверхности соответственно;
- по месту установки наносятся буквы C — стены, Ч — чердак, Ц — цокольное помещение;
- габариты в дециметрах наносятся цифрами.

Видео по теме: Дом из железобетонных панелей
Публикации по теме
Характеристики и возможности применения газобетонных блоков Ютонг
Критерии выбора между полипропиленом и металлопластиком
Изготовление и особенности железобетонных перемычек
Тонкости оформления
Главный недостаток старых ж/б домов – безликость и непродуманность планировки, съедающая много полезной площади, давно неактуальна. Огромным преимуществом новой технологии является возможность проектирования жилья любой сложности и его доработки по требованию заказчика. Фантазия архитектора позволяет создать конструкцию на любой вкус – от горизонтально-ориентированного Дома прерий в стиле Фрэнка Райта, до причудливо-фантастического строения по мотивам гениального Антонио Гауди (самозабвенно использовавшего железобетон для своих бессмертных проектов).
Урбанистический дом у подножия Фудзи; бетон, стекло и облицовка натуральным деревом Источник makebestphoto.
ruВыбор архитектурного стиля позволяет подчеркнуть особенности конструкции и вкусы его хозяев. Наиболее часто встречаются дома из железобетона, выполненные в современных стилях, а именно:
- Минимализм. Оригинальный дизайн зародился столетие назад и до сих пор остается актуальным решением (особо ценимым в Скандинавских странах и Японии). Для него характерны четкие лаконичные формы и натуральная цветовая палитра светлых оттенков. Дом гармонично вписывается в ландшафт, панорамные окна и раздвижные двери не мешают солнечному свету проникать в комнаты.
- Хай-тек. Присутствует строгость интерьера в духе минимализма, а техничность и рациональность подчеркивается обилием металла и стекла. Излюбленные приемы – простор помещений, много света, неожиданно прозрачные лестницы, алюминиевые детали и оригинальные формы.
Крыша в стиле модерн по-барселонски Источник pinterest.es
- Модерн. Основа стиля – функциональность и комфорт.
Допускается эксперимент с материалами, приветствуются контрастные и неожиданные сочетания цветов и силуэтов. Внешний облик загородного дома в стиле модерн узнается по растительным орнаментам и многочисленным заимствованиям из других стилей; эркеров, оригинальных крыш, многоугольных балконов, декоративных башен и балюстрад.
В целом железобетонные панели позволяют создавать сложные конструкции, используя любые виды облицовочных материалов. Чтобы дом служил долго, необходимо позаботиться о серьезной гидроизоляции и утеплении, а также продумать систему вентиляции.
сборные, трехслойные сэндвич, монолитные и другие виды, какие бывают размеры (ширина, толщина, длина) плит для строительства
Для строительства стен зданий жилого, промышленного и торгового назначения используют бетонные и железобетонные изделия.
Такие панели вышли на строительные рынки мира более 50 лет назад и с тех пор остаются неизменно востребованными с высокими прочностными и огнеупорными характеристиками.
Они стали незаменимыми при возведении массовых серий жилых многоэтажных домов, благодаря чему во всех российских городах появились микрорайоны новостроек. Сегодня они успешно применяются не только в массовом строительстве, но и в индивидуальном.
Новые многослойные модификации железобетонных стеновых панелей делают здания не только прочными, но и теплыми, огнебезопасными и акустически защищенными.
Содержание
- 1 Общая характеристика панелей для строительства
- 1.1 Какие бывают по функциональному назначению?
- 1.2 По конструкции
- 1.2.1 Монолитные
- 1.2.2 Сборные
- 1.2.2.1 Одно-, двух- и трехслойные
- 1.2.3 Пустотелые
- 1.2.4 Из одного или разных видов бетона
- 1.3 По нагрузкам
- 1.3.1 Несущие
- 1.3.2 Самонесущие
- 1.3.3 Ненесущие
- 1.3.4 Конструкционные
- 1.4 По способу армирования
- 1.5 По маркам
- 1.6 По материалу изготовления
- 1.7 По внешнему виду
- 1.
7.1 Конструкционные
- 1.
- 2 Виды по размерным характеристикам
- 2.1 Из легких бетонов
- 2.2 Стеновые наружные для дома
- 2.3 Для перегородок
- 2.4 Стеновые по серии 3.902
- 2.5 Дорожные железобетонные
- 3 Почему важно правильно выбрать?
- 4 Заключение
Общая характеристика панелей для строительства
Чисто бетонные стены применяются редко, поскольку они могут нести только нагрузку на сжатие, например, в колонны. Железобетон — относится к композиционному стройматериалу, в котором объединены в одно целое бетон и железная арматура.
Последняя располагается таким образом, чтобы усилия растяжения были приняты армоконструкцией, а сжатия — бетоном. Таким образом нивелируется главный недостаток бетона — невысокая прочность к растягивающим усилиям. Общее функционирование бетона и арматуры гарантируется отличным сцеплением между ними и близкими по значению показателями линейного расширения.
Для того чтобы повысить скорость строительства, были разработаны определенные типоразмеры стеновых плит. Под них были построены новые заводы и технологические линии, которые способны были выпускать изделия для всех типов стен зданий.
Наружные плиты классифицируются по трем подкатегориям: однослойные из легкого бетона, 2-х и 3-слойные из тяжелых модификаций бетонов и слоя теплозащиты. Во многих модификациях плит внешний слой плит покрывают керамической плиткой или другими современными видами отделочного материала. Внутренняя часть выровнена и подготовлена для отделочных операций.
По мере развития строительных технологий, производство железобетонных стеновых плит также претерпело изменения, в результате чего сегодня появилось множество разных типов изделий, которые можно применить под любые проектные решения.
В результате стандартизации производства железобетонных стеновых конструкций они приобрели следующие преимущества:
- Стабильность материала при температурных скачках.

- Устойчивость к агрессивным природным факторам.
- Огнестойкость.
- Превосходные несущие и прочностные характеристики.
- Высокая стойкость против влаги и продолжительные сроки эксплуатации.
- Скоростной монтаж, не требующий трудоемкой отделки.
- Универсальность конструкции.
Как и многие другие стройматериалы, железобетонные изделия (ЖБИ) также имеют недостатки, среди которых можно отметить:
- необходимость использования специальной техники во время монтажных и транспортных операций из-за тяжелого веса конструкций;
- более низкие тепло- и шумозащитные характеристики чем у кирпичной стены;
- невозможность фрагментного ремонта.
Какие бывают по функциональному назначению?
Производство стеновых ЖБИ стандартизированы по ГОСТ для различных условий эксплуатации, в связи с чем они классифицируются по функциональному назначению:
- жилищные объекты: индивидуальные, многоэтажные, цокольные конструкции, техподполье и чердачные помещения;
- промышленные объекты: цеха, склады, ТЭЦ и другие;
- технические сооружения: элеваторы, тоннели, водонапорные и котельные.

По конструкции
Конструкция стеновых панелей должна обладать высокой прочностью, небольшой теплопроводностью, огнестойкостью, незначительной удельной массой, а также экономичным процессом производства. Не менее важными критериями считаются простое выполнение монтажных работ и эксплуатационное качество полученных стыковых соединений.
Прочность ЖБИ панелей гарантируется жестким закреплением, как друг с другом, так и с перекрытиями. Для того чтобы обеспечить все требуемые параметры строительства здания, стеновые плиты конструкционно могут быть выполнены монолитными, полыми или комбинированными из первых 2-х видов.
По количеству слоев они могут быть многослойными или сборными и монолитными.
Монолитные
Этот вид панелей имеет сплошное сечение, устанавливаются в конструкционных местах здания, где требуется, чтобы стена обеспечила серьезные перегрузки. Как правило, они создаются на стройплощадке согласно точным расчетам, в связи с чем способны иметь многообразные конфигурации и размеры.
Сборные
Количество слоев в сложных стеновых плитах колеблется от одного — однослойные модели, до трёх — трехслойные. Слоистые стеновые панели изготавливаются монолитными, с неразделенными слоями и с воздушными прослойками. Если такая прослойка размещена за наружным покровом, плиты считаются экранированными слоистыми панелями.
Одно-, двух- и трехслойные
Особенности:
- К однослойным стеновым ЖБИ относятся варианты, изготовленные из одной, как правило легкой, фракции бетона. Они отличаются тем, что главный слой плиты, которая размещается внутри помещения, обрабатывается специальным цементом для оптимизации полного формирования отделочного процесса.
- Двухслойные — используются для внутренней теплоизоляции объекта. Такие сэндвич-панели имеют два слоя — армирование и теплозащита. Последний, как правило, состоит из минеральной ваты, пенобетона или пеностекла, зацементированных отделочной стяжкой.
- Трехслойные — по конструкции соединяются ребристыми панелями, промежуток между которыми заполняют теплоизоляторы.
Эти модели наиболее увесистые и вместе с тем считаются высоко функциональными строительными материалами для строительства многоэтажных зданий.
Сегодня в России набирает популярность метод получения стеновых плит по технологии СИП-бетона, особенно при индивидуальном строительстве. СИП — это структурно-изолированные плиты, которые уже более полувека успешно применяются в США, Канаде и ЕС.
Структурно-изолированные плиты могут выполнять роль не несущей композитной стены, состоящей из плиты, основанной на силикате кальция с добавлением цемента, песка, пенополистирола и технических добавок. Они не тяжелые.
Пустотелые
Технология пустотелых плит позволяет получить высоконагружаемые конструкции с экономией бетона, при сокращении удельных расходов энергии и трудозатрат на выпуск 1 м3 стенового материала.
Применение пустотного ЖБ решает одновременно 2 задачи:
- тепловая защита дома;
- гарантия высокой прочности строения.

Такая технология не применяется в районах с теплым климатом или при отсутствии жестких требований к прочности сооружения.
Из одного или разных видов бетона
Подобные конструкции выпускают для снижения затрат цемента при условии обеспечения высокой однородности и высоких прочностных характеристик стеновой плиты не ниже нормируемых показателей, путем соответствующего подбора компонентного состава, с учетом методики производства плит, их транспортировки и монтажа, а также потенциала дальнейшего возрастания крепости строительного бетона в конструкции и сроков выхода плиты на полную расчетную нагрузку.
Для выпуска ЖБ панелей применяют такие марки бетона:
- для наружных конструкций с теплоизолятором, легковесный пористый либо крупноячеистый тяжелый бетон;
- для холодных необогреваемых стен B15 — тяжелый бетон;
- для однослойных — бетон легкого класса от M50 или ячеистый M25;
- для трехслойных — класс тяжелых бетонов от M150 или M100.

По нагрузкам
Это базовая характеристика стеновых плит, которая гарантирует надежность строения от условия эксплуатации конструкций.
По стойкости к перегрузкам стеновые ЖБ панели могут быть:
- самонесущими;
- ненесущими;
- несущими.
Для всех этих вариантов плита должна содержать расчётный и конструктивный арматурный слой. Последний обеспечивает прочность изделия при перевозке и сборке, а также в процессе эксплуатации.
Несущие
Стеновая плита этого типа способна воспринимать собственную вертикальную весовую нагрузку и вес опирающихся на нее перекрытий, передавать общую нагрузку на поперечные конструкции и основание здания.
Прочность ЖБИ гарантируется совокупной работой бетона и арматурного скелета во внутреннем бетонном слое, который, как правило, имеет большую ширину и считается несущим, эту конструкцию называют рабочей арматурой.
Во внешнем слое размещается расчетная арматура, воспринимающая нагрузки, которые образуются при транспортировке и монтаже плит.
В чисто бетонных стеновых плитах элементы рабочей арматуры отсутствуют, а имеются лишь расчётная составляющая армоконструкции.
Самонесущие
Эти панели способны воспринимать только вертикальную нагрузку, возникающую под давлением массы плиты и вышерасположенных панелей. Их изготавливают на аналогичном оборудовании, что и несущие конструкции плит.
Внутренние самонесущие плиты состоят из 1-го слоя бетона класса В25, относящегося к маркам тяжелого и укреплены железной арматурой. Толщина таких панелей зависит от проекта здания и может находиться в диапазоне от 130 до 170 мм.
Ненесущие
Это самые слабые стеновые конструкции, которые не предназначены, чтобы на них опирались любые другие строительные плиты и элементы, кроме дверных блоков.
Если будет позволять расчет, они
Плиты имеют хорошую производственную подготовку, эксплуатационное качество внешних и внутренних площадей достаточно ровное с перепадами до 3 мм, поэтому не нуждаются в выравнивающей штукатурке.
При отделке необходимо лишь сделать завершающую шпаклевку, либо для санузла, можно сразу наклеить керамическую плитку.
Конструкционные
Эта модификация самых прочных стеновых панелей плотностью свыше 2000 кг/м3 и высокой морозоустойчивостью стройматериала свыше 50 циклов замораживания/размораживания.
К конструкционным также относятся современные SIP панели, в основе которых заложено применение теплозащитных панелей для основных элементов здания.
По способу армирования
По варианту установки армированных конструкций внутри плиты различают:
- установку напрягаемой арматуры с предварительным напряжением;
- простое армирование с размещением ненапрягаемой арматуры.
При применении ЖБ стеновых плит, даже при небольших напряжениях в бетонном слое возникают трещины. Это объясняется тем, что арматура действует одновременно с бетоном, который имеет отличную от стали предельно допустимую деформацию: у бетона 2 мм на 1 м длины, а у стали — 10 мм.
По маркам
Согласно международным и отечественным стандартам, марка бетона является основной характеристикой для стеновой панели. Марки бетонов выпускают от М100 до М500, при этом производство стен имеет максимальный показатель М300.
Главные области использования бетона различных марок для стеновых конструкций:
- М100 — практически для стен не использует, только в качестве подготовительной базы под ненесущие стены.
- М150 — в качестве ленточных фундаментов.
- М200 — применяется в области частного домового строения для стеновых блоков.
- М250 — внутренние несущие плиты.
- М300-внешние несущие стены от жилых объектов до монолитных подпорных систем.
По материалу изготовления
Категорийность бетонов по плотности получают в промышленных масштабах благодаря использованию различных смесей. Так для легких модификаций бетона используется:
- керамзит;
- вспученный шлак;
- пемза.

Для тяжелых марок бетонов в качестве заполнителя используют гранитную крошку или щебень. Эта наиболее популярная ЖБ смесь в промышленности, которую применяют при производстве изделий ЖБИ.
Не менее популярными считаются бетоны с ячеистой структурой в виде пор, заполненных воздухом и относящихся к легким бетонам.
По внешнему виду
Для бетонных стеновых плит в действительности существует безграничное число разнообразных форм, расцветок и текстур. На производственных линиях используют простые варианты поверхностной обработки или более сложные в виде:
- плиточной облицовки;
- оксидной окраски;
- пескоструйной очистки;
- полировки и травления.
Различают первичную и вторичную отделку. Первая осуществляется в процессе их производства на стадии формования бетона. Самые сложные отделочные технологии применяются для внешних капитальных стен жилых объектов, поскольку потребуется одновременная качественная отделка внешней стороны и подготовка к внутренней отделки.
Причем первичная отделка может выполниться при формировании ЖБ плиты на заводе, «лицом вниз» либо «вверх», исходя от того, каким образом будет ориентирована фасадная стена. Вторичная отделка железобетонных панелей выполняется после окончательного затвердения бетона.
В случае, если первичную и вторичную обработку расценивать с позиции долговечности, то первичная наиболее долговечная.
Конструкционные
Конструкционные промышленные железобетонные стеновые плиты выпускаются в виде прочного, долговечного и универсального стройматериала, предпочтительны для холодных климатических зон, что предполагает минимальное обслуживание их в процессе эксплуатации.
Бетон относится к огнеупорным материалам, практически не сжимаем, не гниет и не способен к деформации.
Со временем он набирает силу, поэтому его структура идеально функционирует при непрогнозируемых условиях, которые связаны с переменой климата.
Конструкционные плиты выпускают таким образом, что они не требуют дополнительной фиксации, при этом самостоятельно способны обеспечить прочную боковую фиксацию, для успешного противодействия циклоническим ветрам.
Такие готовые стеновые плиты имеют высокую ударную прочность, выдерживают износ и при эксплуатации практически не требуют ремонта и обслуживания. По конструкции такие ЖБ стеновые панели устанавливают при возведении мансардных помещений, надземных жилых этажей и цокольных стен.
Каждая модификация панели проектируется отдельно с особенной установкой монтажных отверстий, крепежных и подъемных вставок.
Виды по размерным характеристикам
ЖБ стеновые панели выпускаются с разнообразной конфигурацией и габаритами. Выбор типа и размеров бетонных плит для строительства объекта выполняется в процессе проектирования из типовых модификаций.
В большинстве случаев типовые панели выпускаются со стандартными размерами для жилых объектов — 12*1,8 м и 6*1,2 м, а для промышленных объектов принимаются панели соответственно — 6.
9 и 12 м. Для стенок, имеющих проемы используют изделия по длине от 1.5 до 3.0 м, а для проемов дверей — от 1.48 до 2.98 м.
Все плиты маркируются на заводе по ГОСТ несмываемой краской, которая наносит специальный код на ребра.
Код состоит из 3-х цифр и литер, разделенных дефисом:
- Первые цифры указывают на метод производства, например, от 1 до 3 относятся к монолитным конструкциям, а от 4 до 6 к составным.
- Первый буквенный символ обозначает области применения «Н» или «В» установки снаружи или внутри.
- Далее идет обозначение места установки «С»/»Ц»/»Ч», что означает — стена/цоколь/чердак.
- Следом идет указание размеров, при этом ширина обозначается в см, а длина панели — в дц.
Кроме того, в маркировке указывается вид бетона, конструктивная особенность прямая или зеркальная и номер расположения закладных элементов.
Например, маркировка стеновой панели из легкого бетона 6 м Х1.5х0.25м с номером закладных 31 будет иметь вид: ПС 60.
15.2.5-2.Л-1.31
Из легких бетонов
Эти виды стеновых панелей применяются при строительстве одноэтажных промзданий по серии 1.030.1-1 до 7,2м и толщину 250 и 300 мм по металлоформам. Они могут использоваться для работы во влажном здании до 70%.
Усредненная плотность исходного бетона в сухом состоянии не должна быть ниже 900 и не может превышать 1300 кгс/м3. Они обладают внешней и внутренней фактурной отделкой из смеси цемента и песка.
Кроме того, по серии 1.432 — 11 выпускаются длинномерные изделия 12м для стеновых конструкций промышленных зданий с системами отопления с двухсторонними отделочными слоями из раствора, полученного с композицией цемента и песка.
Легкобетонные стены 1.433 — 2 также для производственных зданий в которых может возникать агрессивная воздушная среда и влажные условия эксплуатации до 80%.
Стеновые наружные для дома
Однослойные неразрезные панели по РЧ No08/11-11024-ЭКБ применяются при возведении объектов до 18 этажей.
Габариты панели: 6,8 х2,740 х0.480 м. Стены производятся в щитовой опалубке, обладают оконными и дверными проемами и выпускаются на основе перлитобетона.
Для перегородок
Каждый дом, от индивидуального до многоквартирного, имеет внутренние перегородки, которые выпускаются в виде крупногабаритных плит с размерами соответствующим высоте этажа и длиной 6 м.
Такие панели должны быть укреплены стальной проволочной сеткой, термически и механически устойчивой арматурой не ниже класса А/3 или АТ/3С, которые дополнительно покрыты антикоррозийным грунтом.
Стеновые по серии 3.902
Стеновые панели 3.902.1-12 также армируются сварными сетками с защитным слоем бетона не менее 30 мм. Часто в соответствии с дополнительным заказом застройщика наносят холодную битумную гидроизоляцию на все плоскости панелей.
Аналогично возможно производство панелей с особыми условиями по бетонным смесям, например, использовать сульфатостойкий портландцемент.
Дорожные железобетонные
Большинство заводов ЖБИ производят не только стеновые панели, но и плиты перекрытия и железобетонные дорожные плиты. Последние используют высокопрочный бетон (В25, В30).
Модификации, которые производятся способом вибролитья либо вибропрессования:
- 50*50;
- 1000*1000*100;
- 500*500*50;
- 1000*500*50.
Последующий этап производства — пропарка форм до завершения кристаллизации бетонированной смеси. В состав может добавляться краситель, который не выгорает от ультрафиолетовых лучей и не вымывается атмосферными осадками.
Такие железобетонные плиты обладают преимуществами:
- высокие показатели ЖБИ по прочности и износостойкости;
- продолжительный период использования при стабильных высоких нагрузках;
- эстетическое оформление;
- несложность установки, возможность проведения ремонта и обслуживания;
- теплостойкость и экологическая безопасность.

Почему важно правильно выбрать?
Ошибки при выборе железобетонных стеновых плит очень дорого стоят, если они будут обнаружены уже после возведения стен, придется выполнять демонтаж установленных плит.
Даже при незначительных ошибках, допущенных при выборе модификаций стеновых стройматериалов, застройщику придется оплачивать сверхнормативные потери тепла и повышенные расходы по эксплуатации и ремонту такого дома. Для того чтобы этого не допустить, нужно знать правила выбора.
Критерии выбора железобетонных стеновых панелей:
- Высокая способность противодействовать давлению ветра, температурным колебаниям в железобетонных слоях, усадке и микроползучести слоев, осадке фундамента, горизонтальным силам, которые вызываются в процессе жизнедеятельности человека, животных или транспортом, выдерживать собственный вес и вес оборудования.
- Вид исполнения внешнего и внутреннего слоя панели, которая устанавливается согласно требованиям по прочности и сроку эксплуатации.

- Варианты рабочего конструктивного и расчетного армирования.
- Эффективность теплоизоляционного слоя.
- Эффективные связи для многослойных панелей, для равномерного переноса нагрузки внешнего слоя на внутренний и предупреждения прогиба слоев.
- Отделка поверхностей стеновых плит должна гарантировать защиту от природных воздействий и осуществлении декоративных функций.
Заключение
Стеновые железобетонные поверхности широко применяются, как в процессе массового многоэтажного строительства, так и индивидуального. По своему назначению они подразделяются для жилых и промышленных зданий, а также имеют различную модификацию:
- для стен;
- цокольных этажей;
- чердачных этажей.
Они пользуются повышенным спросом вследствие высоких прочностных характеристик и долговременного срока службы. ЖБ панели должны соответствовать ГОСТ, который обязаны строго соблюдать производители стеновых панелей на всех этапах производства.
WALL DIMENSION – ПРЕОБРАЗУЙТЕ ВАШЕ ПРОСТРАНСТВО Стеновая 3D-панель, 3D-виниловая плитка и настенная доска из натурального состаренного дерева
Перейти к основному содержанию
0 товаров
Настенная 3D-панель — WAVE БЕЗ ЗАЗЕМ | P/N WD-077C — 12 панелей
129,99 $$89,99 РаспродажаДобавить в список желаний
Добавить в корзину
Стеновая 3D-панель — WEAVE| P/N WD-008C — 12 панелей
129,99 $$89,99 РаспродажаДобавить в список желаний
Настенная 3D-панель — CIRCLE | P/N WD-027C — 12 панелей
129,99 $$89,99 РаспродажаДобавить в список желаний
Добавить в корзину
Настенная 3D-панель — КУБ | P/N WD-032C — 12 панелей
129,99 $$89,99 РаспродажаДобавить в список желаний
Добавить в корзину
Настенная 3D-панель — ЦВЕТОК | P/N WD-076C — 12 панелей
129,99 $$89,99 РаспродажаДобавить в список желаний
Добавить в корзину
Самоклеящаяся лента для настенного изделия Dimension Wall — 20 футов
19,99 $
Добавить в список желаний
Добавить в корзину
Образец стеновой панели Wall Dimension 3D — 1 панель
15,00 $
Добавить в список желаний
Выберите параметры
Настенная 3D-панель — DRIFT| P/N WD-099C — 12 панелей
129,99 $$89,99 РаспродажаДобавить в список желаний
Добавить в корзину
Rustic Grey|WP-010C|Peel & Stick DIY Деревенский обветренный корабельный переплет Настенная доска или панель из натурального дерева
$169,99109,99 долларов США РаспродажаДобавить в список желаний
Добавить в корзину
White Wash|WP-035C|Отшелушивайте и приклеивайте «Сделай сам» Деревенский обветренный корабельный настил Настенная доска или панель из натурального дерева
169,99 $109,99 долларов США РаспродажаДобавить в список желаний
Добавить в корзину
Деревянная доска Peel & Stick — полноразмерная одинарная доска
19,99 $$14,99 РаспродажаДобавить в список желаний
Выберите параметры
Saw Mark Light Grey|WP-020C|Peel & Stick DIY Деревенский выветренный корабельный настил Настенная доска или панель из натурального дерева
179,99 $119,99 долларов США РаспродажаДобавить в список желаний
Добавить в корзину
Облупившийся антично-белый|WP-029C|Отклеить и приклеить Сделай сам Деревенский обветренный корабельный настил Настенная доска или панель из натурального дерева
$189,99129,99 долларов США РаспродажаДобавить в список желаний
Добавить в корзину
Rustic Black|WP-009C|Peel & Stick DIY Деревенский обветренный корабельный настил Настенная доска или панель из натурального дерева
$169,99109,99 долларов США РаспродажаДобавить в список желаний
Добавить в корзину
Краска для ретуши деревянных досок
19,99 $
Добавить в список желаний
Выберите параметры
Подписаться
Отписаться
Ой! Введенный адрес электронной почты недействителен.
Вухуууууууууууууууууууууууууууу Вы успешно подписались.
Хорошо! Вы отписались.
Образец стеновой 3D-панели
ПРЕОБРАЗУЙТЕ ВАШЕ ПРОСТРАНСТВО
Наскучил один и тот же вид вашего офиса или дома? Подарите стенам новую жизнь с помощью стеновых 3D-панелей!
Стена – самое заметное место в комнате; поэтому он должен быть визуально привлекательным. Яркие цвета и экзотические узоры на стенах могут сделать любое общежитие более ярким и роскошным.
ПРОСТОТА УСТАНОВКИ. НАСЛАЖДАЙТЕСЬ БЕСКОНЕЧНО
Наши самые продаваемые стеновые 3D-панели созданы для того, чтобы украшать интерьер вашего дома без клея. Просто снимите и приклейте их к стене, и вы получите совершенно новый вид. Установка наших 3D-панелей для стен очень проста, поскольку клей уже нанесен заранее, что сэкономит вам много драгоценного времени на их установку и последующую очистку.
НАИБОЛЬШИЙ ВЫБОР. САМОЕ ШИРОКОЕ ВООБРАЖЕНИЕ
Лучшая часть? У нас самый большой выбор дизайнов 3D стеновых панелей. Конструкции могут быть персонализированы в соответствии с вашими требованиями или вкусами. Хотите создать форму ромба? Или вам больше всего нравятся волнистые узоры? Кубический дизайн кто-нибудь? Какими бы ни были ваши фантазии, они у нас есть! сразу же установите декоративные 3D-панели из ПВХ в изобилующие макеты.
ШАБЛОН БЕЗ ЗАЗЕРОВ. BREATHLESS WALL
В отличие от всех других 3D-панелей для стен, представленных сегодня на рынке, мы стремимся к тому, что мы называем «идеальной волной». Мы стремимся сделать наши продукты намного лучше, минимизируя зазор между панелями, изменяя высоту волнистого узора, чтобы сделать их однородными, и следя за тем, чтобы волнообразный узор был смежным между панелями. Почему все это важно? Внеся все эти улучшения, узор, который будет отображаться на вашей стене, будет выглядеть более естественно, рисунок будет непрерывным, высота рисунка будет одинаковой.
Все это придает стене более спокойный, профессиональный и роскошный вид. Наша стена — это та, которой вы будете наслаждаться долгие годы, а не та, на которую вы будете жаловаться каждый день. Наши прорывные конструкции без зазоров доступны в цветах Wave, Twig и Serene.
THEY GO PLACES
Наши стеновые 3D-панели помогут вам выиграть в игре по декорированию стен и избавиться от уродливых проблемных стен! Будь то ваша спальня, кухня, гостиная, декоративные стены, конференц-зал, фон вестибюля, стойка регистрации, ресторан или кафе; Создайте потрясающий визуальный эффект с помощью этих простых в применении панелей.
Наши стеновые 3D-панели идеально подходят как для ванных комнат, так и для наружных работ, так как изготовлены из водонепроницаемого и очень прочного пластика. Наша продукция держит форму, не крошится под давлением и углы всегда на 90 градусов для этой идеальной компоновки. Они легко моются, долговечны и водонепроницаемы.
ИНТЕРЕСНЫЕ ХАРАКТЕРИСТИКИ
• Быстрая самостоятельная установка Peel And Stick
• Изготовлен из безопасного и прочного пластика.

Для монтажа панелей необходим кран грузоподъемностью не менее 120 т и бригада монтажников в количестве 4-6 человек.
Следующий шаг – «зачеканивание» швов наружного слоя ЖБ конструкций.
Это сложные чертежи и расчеты, которые необходимо заказать в специальных организациях.


Допускается эксперимент с материалами, приветствуются контрастные и неожиданные сочетания цветов и силуэтов. Внешний облик загородного дома в стиле модерн узнается по растительным орнаментам и многочисленным заимствованиям из других стилей; эркеров, оригинальных крыш, многоугольных балконов, декоративных башен и балюстрад.
7.1 Конструкционные

Эти модели наиболее увесистые и вместе с тем считаются высоко функциональными строительными материалами для строительства многоэтажных зданий.

В чисто бетонных стеновых плитах элементы рабочей арматуры отсутствуют, а имеются лишь расчётная составляющая армоконструкции.

15.2.5-2.Л-1.31
